Façade à vitrage structurel 50mm
La gamme WICTEC SG Structural Glazing révolutionne l’univers de la façade mur-rideau en proposant un vitrage structurel. Les architectes, bureaux d’étude et concepteurs bénéficient ainsi d’un outil modulaire autorisant la construction de façades translucides des doubles vitrages.
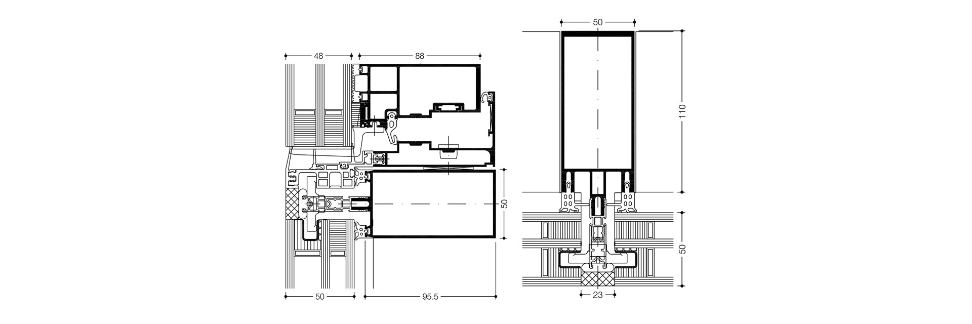
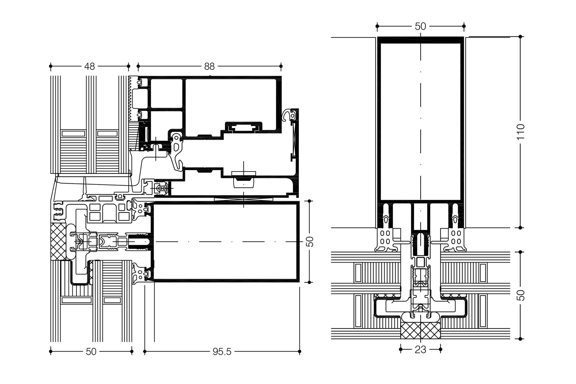
La façade WICTEC 50 SG se caractérise notamment par une conception en affleurant, avec joints silicone minces entre les panneaux vitrés. La technologie "tout-verre" mise en place par WICONA se met facilement en œuvre à partir du système standard et permet un assemblage simple et économique, tout en assurant un haut niveau de qualité. Elle s’adapte aussi bien aux murs-rideaux verticaux que pour les vitrages pour toits en pente.
En plus de ses performances techniques, le mur-rideau WICTEC 50 SG affiche une esthétique pure, permettant les designs les plus tendances, pour des projets audacieux répondant aux exigences de construction modernes.
Le mur-rideau à vitrage structurel WICTEC 50 SG de WICONA affiche un design "tout-verre" complété par son châssis complémentaire WICLINE 90 SG. Ensemble, ils forment un système homogène, avec vantail intégré proposant une ouverture parallèle vers l’extérieur ou à l’italienne.
Documentation
Performances techniques
Résultats d'essais du système / produit avec certification CE conforme à la norme DIN EN 13830
Perméabilité à l’air
Étanchéité à l'eau
Résistance au vent
Résistance aux chocs
Approbation
Gestion environnementale
Classe AE
RE 750
2000 Pa, sécurité ± 3000 Pa
Classe E5 / I5
ATE: 12/0551 (Agrément Technique Européen)
Certification selon la norme ISO 14001
Caractéristiques
Largeur
Isolation thermique
Épaisseur de remplissage
Profilés en aluminium internes 50 mm ; Joint silicone externe 23 mm
Uf jusqu'à 1.6 W/(m²K)
jusqu'à 64 mm
Principe du système
- DTA (Agrément Technique Européen) disponible
- Esthétique remarquable
- Structure de base du mur-rideau WICTEC 50 avec un principe identique en termes de profilés et de joints
- Installation simple et rapide des vitrages grâce à un dispositif de fixation spécial breveté
- Combinaison possible avec des profilés capots extérieurs de formes et de designs variés
- Le complément idéal : vantail intégré « tout verre » WICLINE 90SG avec système d’ouverture parallèle vers l’extérieur ou à l'italienne
Finitions
- Qualanod
- Qualicoat ou Qualicoat Seaside
- Qualimarine ou Qualimarine Seaside



