WICSLIDE 65
The WICSLIDE 65 sliding system elegantly combines large dimensions with excellent thermal properties. Many details enable each individual installation to be creatively customised. Numerous profile combinations offer you more planning freedom.
Dokumentation
Egenskaber
System test results / CE product pass in accordance with EN 14351-1:2006+A2:2016
Luftpermeabilitet
Vandtæthed
Modstand mod vindbelastning
Akustisk ydelse
Arbejdskræfter
Korrosionsbestandighed af fittings
Kvalitetssikring
Miljøhåndtering
Class 4
Class 7A
Class A3
RA,tr = 36 dB
Class 1
Class 4
Certified to ISO 9001:2008
Certified to ISO 14001
Technical performance
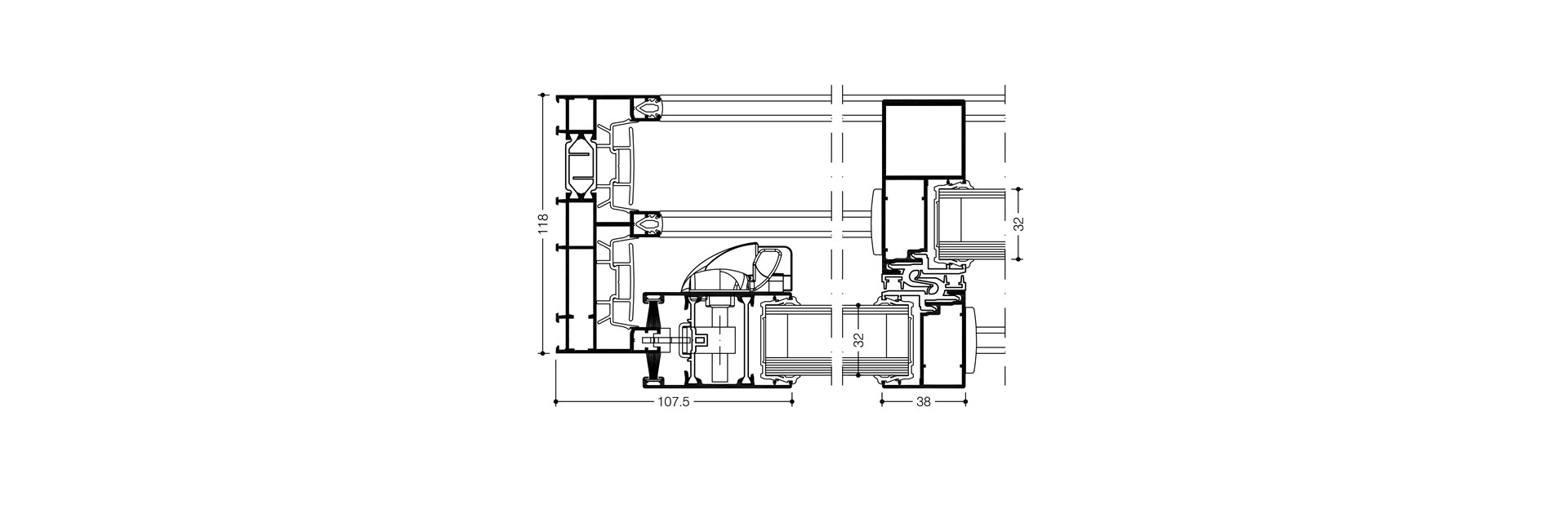
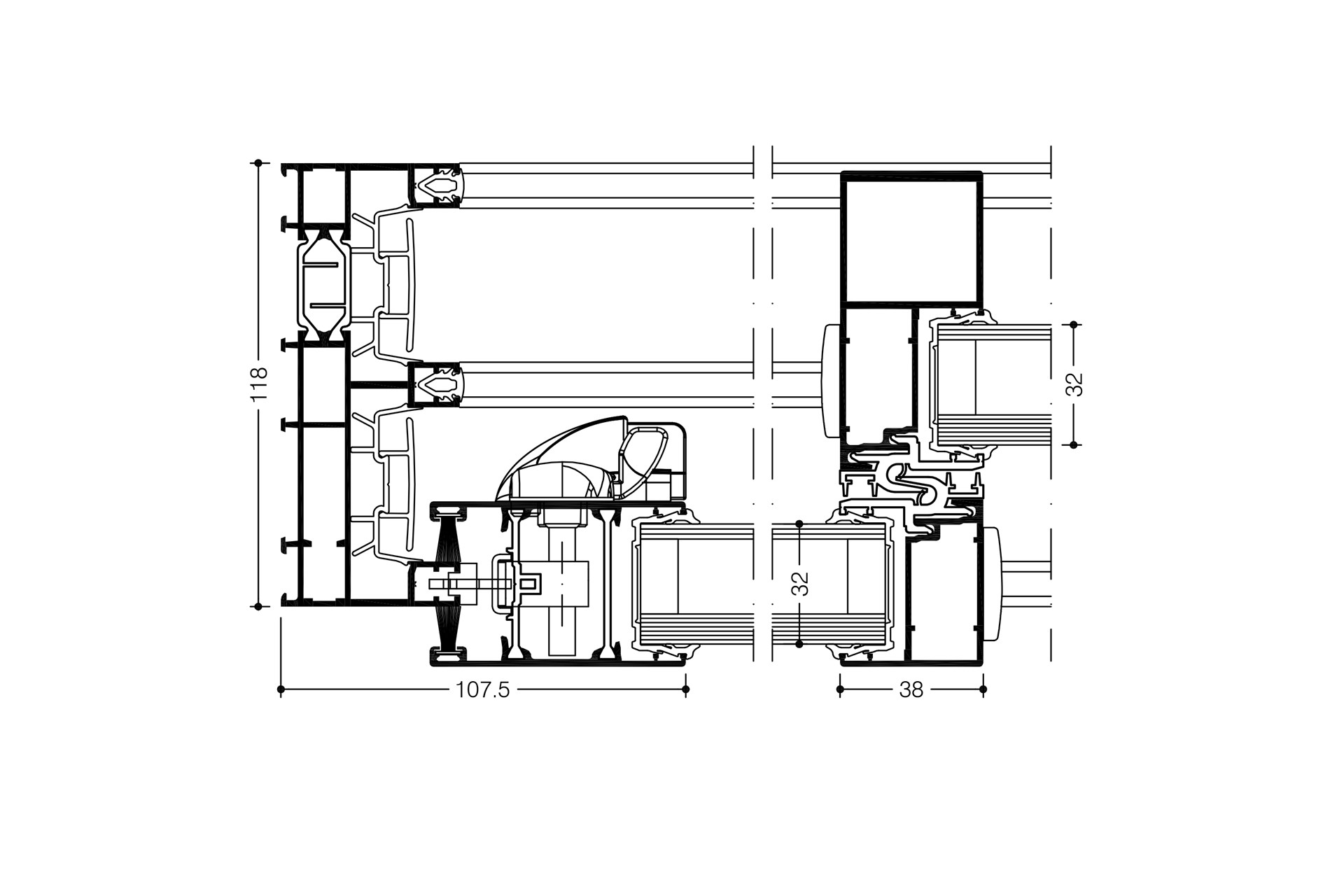
Profile technology
- Sliding units with 65 mm construction depth (double-track) or 118 mm (triple-track)
- Two-, three-, four- or six-leaved application
- Patented corner connection technology for high component strength and reduced use of adhesive.
- Infill thicknesses: 24 mm, 28 mm or 32 mm
- Concealed or visible drainage
- Perpendicular leaf profile in different designs, straight or rounded
- Individually customisable profile connection technology
- Optional: Accessible threshold
Thermal insulation
- Uw up to 1.5 W/(m²K) with Ug = 1.0 W/(m²K)
Hardware
- Max. leaf weight with single rollers: 80 kg
- Max. leaf weight with double rollers: 220 kg
- Leaf sizes (w x h): up to 2400 mm x 2500 mm



