Das WICLINE SILENT Fenster wurde auf bis zu 69 dB Schalldämmung geprüft.
WICLINE SILENT Fenster auf bis zu 69 dB Schalldämmung geprüft
Speziell im urbanen Raum oder in Bereichen hoher Schallemissionen, wie Flughäfen oder Logistikzentren, nimmt die Schalldämmung der Gebäudehülle eine immer größere Bedeutung ein.
Außenlärmpegel von über 80 dB sind keine Seltenheit und auch Nachts führen die hohen Lärmpegel zu Problemen für den Menschen - von Schlaflosigkeit bis zu daraus folgenden ernsthaften Erkrankungen - wie Studien der Europäischen Union aufzeigen.
In Städten wie München sind zum Beispiel tagsüber an die 300.000 Menschen einem Lärmpegel L DEN größer 55 dB ausgesetzt.
(Quelle: Landeshauptstadt München – Referat für Gesundheit und Umwelt)
WICONA hat nun seine Fensterserie – welche bereits im Markt für das hohe Leistungsvermögen im Bereich Schallschutz bekannt ist – um eine Lösung erweitert:
Das WICLINE SILENT Fenster.
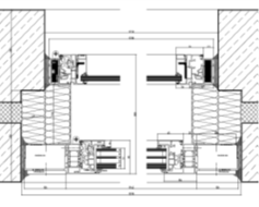
Diese neue Fensterserie basiert auf dem Prinzip eines Kastenfensters. Das neue WICLINE SILENT erreicht Schalldämmwerte von bis zu 69 dB.
WICLINE SILENT ist eine innovative Kombination aus:
- WICLINE 75
- WICLINE 65N
- Cavity Dimension 100 – 250 mm
- Resonator Platte mit porösem Absorber
- Niederfrequente Vibrationreduzierung
Speziell Gebäude mit hohen Anforderungen an Nutzerkomfort und Ruhe, wie bespw. Hotels, Stadtwohnungen, Krankenhäuser und Labore profitieren von dieser WICONA Neuerung. Mit dem erweiterten Schallschutz Konzept bietet WICONA einen deutlichen Mehrwert auch in Verbindung mit den bereits bestehenden Fensterserien:
- WICLINE 75
- Das Premium-Fenstersystem von WICONA.
- WICLINE 115
- Das WICONA Verbundfenster mit integriertem Sonnenschutz
- WICLINE 215
- Das WICONA Hybridfenster mit adaptiver Steuerung des solaren Energieeintrages

Unsere Fachberater informieren Sie gerne in Sachen Schalldämmung von Fenster-, Tür- und Fassadenlösungen.
Schalldämmwerte Labor:

|
MIG außen |
Glas innen | Absorber | Cavity |
Ergebnis RW,P |
|
|
VSG 66.2 SI | Ja | 250 | 69 dB |
| Nein | 67 dB | |||
| 6VSG/12/4/12/4 | VSG 66.2 SI | Ja | 250 | 68 dB |
| 6VSG/12/4/12/4 | 8 | Ja | 250 | 65 dB |

|
MIG außen |
Glas innen | Absorber | Cavity |
Ergebnis RW,P |
|
6/12/4/12/44.1 SI |
8 | Ja | 150 | 66 dB |
| Nein | 62 dB | |||
| 6VSG/12/4/12/4 | 8 | Ja | 150 | 62 dB |
| Nein | 58 dB |

|
MIG außen |
Glas innen | Absorber | Cavity |
Ergebnis RW,P |
|
6/12/4/12/44.1 SI |
8 | Ja | 100 | 63 dB |
| Nein | 61 dB | |||
| 6VSG/12/4/12/4 | 8 | Ja | 100 | 60 dB |
| Nein | 58 dB | |||
| 6VSG/12/4/12/4 | VSG 66.2 SI | Nein | 100 | 64 dB |