WICSTYLE 75 evo
Mit 75 mm Bautiefe stellt WICSTYLE 75 evo die Spitze der Wärmedämmleistung und bauphysikalischen Merkmale dar. Durch seine ausgeprägte Leistungsfähigkeit und Anwendungsvielfalt erfüllt es alle derzeitigen und zukünftigen Anforderungen der Architektur in Neubau und Modernisierung in vorbildlicher Weise.
Dokumentation
Merkmale
Systemprüfungen / CE-Produktpass nach DIN EN 14351-1:2006+A2:2016
Luftdurchlässigkeit
Schlagregendichtheit
Widerstandsfähigkeit gegen Windlast
Schallschutz
Bedienkräfte
Tragfähigkeit von Sicherheitsvorkehrungen
Mechanische Festigkeit
Dauerfunktion
Stoßfestigkeit
Differenzklimaverhalten
Einbruchhemmung
Durchschusshemmung
Qualitätsmanagement
Umweltmanagement
Bis Klasse 2
Bis zu 7A
Klasse C2
RW (C; Ctr) bis 43 (–1; –4) dB
Klasse 2
Erfüllt
Klasse 3
Bis zu Klasse 7 (500 000 Zyklen)
Klasse 1
Bis zu Klasse 2(e) 2(d)
RC1N, RC2N, RC2, RC3
Bis zu Klasse FB4 NS
Zertifiziert nach ISO 9001:2008
Zertifiziert nach ISO 14001
Anwendungsspezifische Angaben siehe ift-Systempass
Technische Leistungen
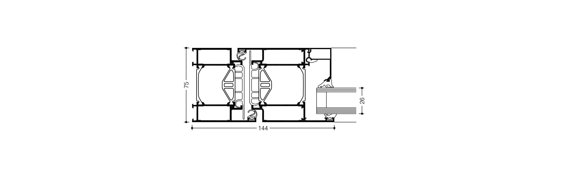
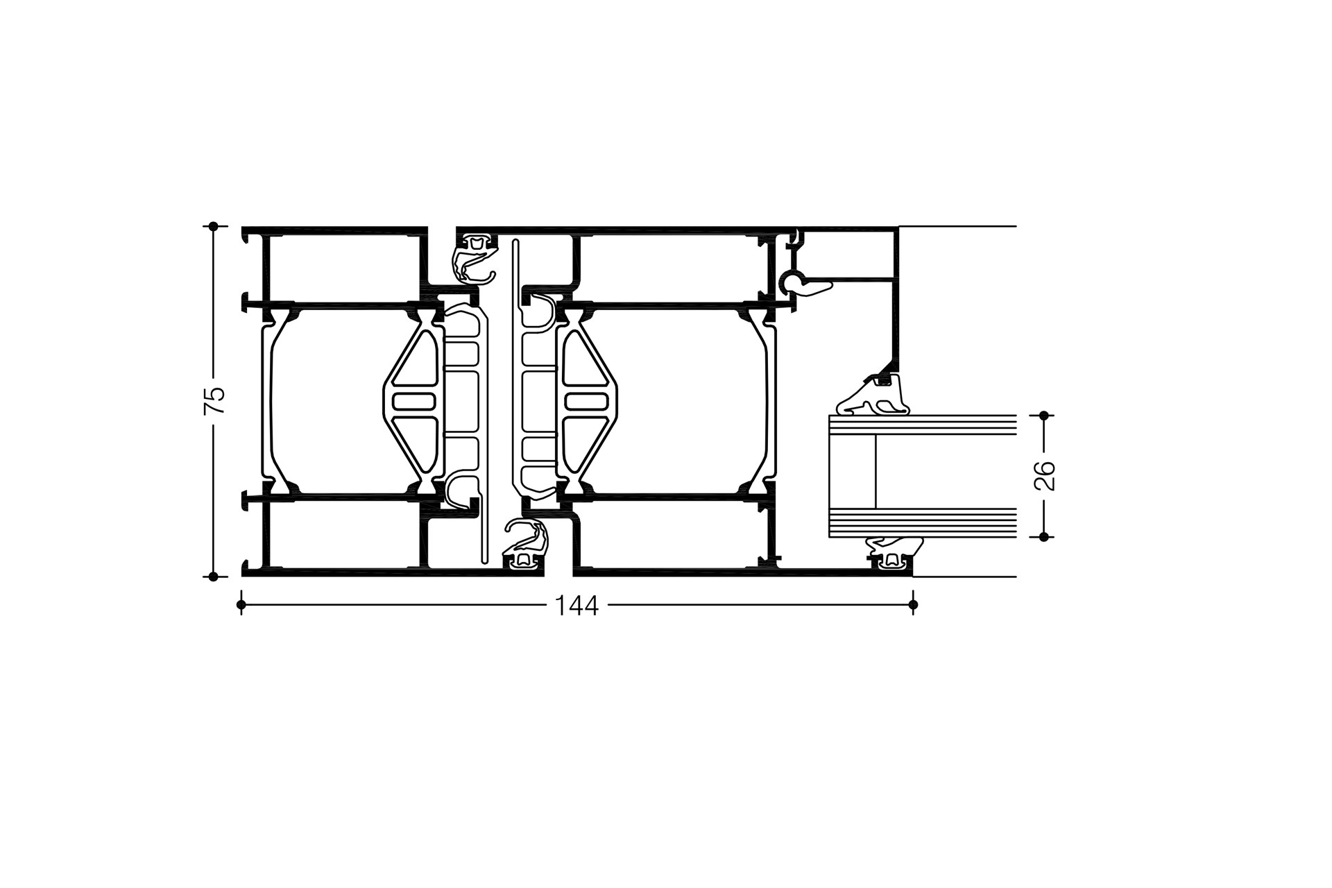
Profiltechnik
- Hoch wärmegedämmtes Mehrkammersystem mit symmetrischem Aufbau, qualitätsgesichert im Werksverbund hergestellt
- Für einflügelige und zweiflügelige Anschlagtüren
- Für einwärts und auswärts öffnende Türen
- Für Glas oder Paneele mit Füllungsdicken von 6 mm bis 60 mm
- Verschiedene Schwellenprofile mit oder ohne thermische Trennung, auch barrierefrei
- Feste oder mit WICLINE 75 evo Fenster kombinierte, zu öffnende Oberlichter und Seitenteile
Wärmeschutz
- Uf-Werte: von 1,6 bis 1,8 W/(m²K), ohne Dämmeinschub
Beschläge
- Rollenband
- Aufschraubband
- Verdeckt liegendes Band
- Flügelformate (B x H): 1400 mm x 2520 mm
- Max. Flügelgewicht: bis 200 kg, für Durchschusshemmung mit Zusatzbändern bis 400 kg
Weitere Ausführungen
- Gegentakttüren
- Einspannrahmen für Pfosten-Riegel-Fassaden
- Einbruchhemmung in den Klassen RC1 bis RC3
- Durchschusshemmung Klasse FB4
- Flügelüberdeckende Füllung, einseitig oder beidseitig


