WICSTYLE 65 N NG FP
Das Türprogramm WICSTYLE 65 N NG bietet maßgeschneiderte Konfigurationen im Bereich der Sicherheits- und Schutztechnik, für jede Bausituation und jeden Anspruch. Die WICSTYLE 65 N NG FP Feuerschutztür entspricht der Klassifizierung EW 30 nach EN 13501. Die Profile sind identisch mit denen der WICONA Standardtürenserie.
Dokumentation
Technische Leistungen
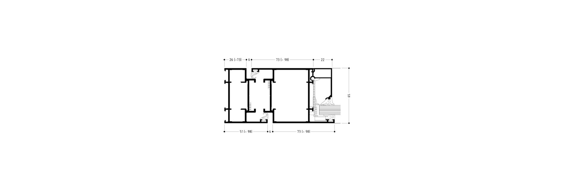
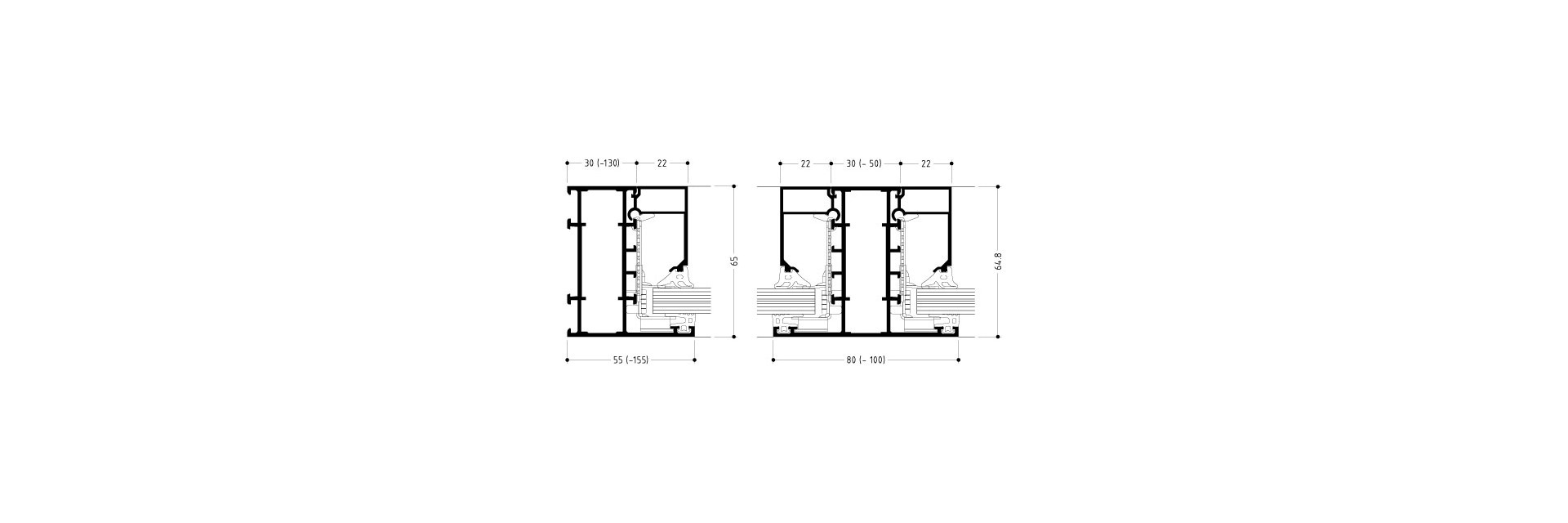
PROFILTECHNIK
- Die Profile sind identisch mit denen der Serie WICSTYLE 65 N NG
- Ausführung in Brandschutzklasse EW 30 mit einfachem Einbau von Zubehör
- Für ein- und zweiflügelige Anschlagtüren
- Für ein- und auswärts öffnende Türen
- Feste Seitenteile und Oberlichter
- Geprüfte Verglasungen: PYRODUR 30-201 und CONTRAFLAM lite 30
AUßENANSICHTSBREITEN
- Blendrahmenprofile: von 55 mm bis 155 mm
- Spezialblendrahmenprofile: von 51 mm bis 98 mm
BESCHLÄGE
- Rollenbänder aus Aluminium und Edelstahl
- Aufschraubbänder
- Zulässige Flügelgrößen (B × H): 1.400 mm × 2.500 mm
- Max. Flügelgewicht: bis 180 kg
Zusätzliche Ausführungen
Zusätzliche Ausführungen
- In Kombination mit Rauchschutz bis zu 1.400 mm × 2.500 mm






