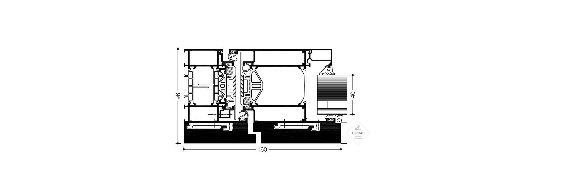
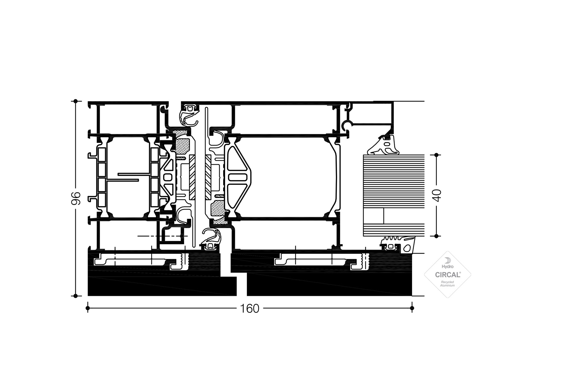
WICSTYLE Durchschusshemmung
Schutz und Sicherheit – für Ihre Gebäudehüllen benötigen Sie einen Lösungsansatz, der ganzheitlich und mit kompatiblen Aluminiumkonstruktionen ausführbar ist. Diesen bieten die WICONA Serien im Bereich der Fenster, Fassaden und Türen in verschiedensten Ausprägungen, jeweils kombinierbar mit zusätzlichen Funktionen. Die Anforderungen im Bereich Durchschusshemmung werden bei mehreren WICSTYLE Türprofil-Kombinationen einfach durch eine Erweiterung mit speziellen Aluminium-Vorsatzprofilen erreicht.
Dokumentation
Merkmale
Systemprüfungen / CE-Produktpass nach DIN EN 14351-1:2006+A2:2016
Allgemeine Information
Siehe Klassifizierung der jeweiligen WICSTYLE-Türserie
Technische Leistungen
Durchschusshemmung nach DIN EN 1522
- Die neuen WICSTYLE 65 evo und WICSTYLE 75 evo Türserien mit einfachen Systemerweiterungen wurden nach dieser Norm getestet und erfolgreich in den Klassen FB4 S und FB4 NS zertifiziert.
- Die Durchschusshemmung kann mit der Einbruchhemmung in den Klassen RC1N, RC2N, RC2, RC3 nach EN 1627 kombiniert werden.
Kombinierbare WICONA Produktserien in Durchschusshemmung Klasse FB4
- Fenster WICLINE 65 evo / WICLINE 75 evo
- Pfosten-Riegel-Fassaden WICTEC 50
Durchschusshemmung nach DIN EN 1522 / Klassifizierungen
WICSTYLE 65 & 75 evo Anschlagtüren ein- oder zweiflügelig, einwärts oder auswärts öffnend
FB4 S / FB4 NS


