WICSTYLE Einbruchhemmung

Objektschutz und Nutzersicherheit – für Ihre Gebäudehüllen benötigen Sie einen Lösungsansatz, der ganzheitlich und mit kompatiblen Aluminiumkonstruktionen ausführbar ist. Diesen bieten die WICONA Serien im Bereich der Fenster, Fassaden und Türen in verschiedensten Ausprägungen, jeweils kombinierbar mit zusätzlichen Funktionen. Die verschieden hohen Anforderungen im Bereich Einbruchhemmung werden bei allen WICSTYLE Türserien ohne optische Veränderungen mit geringfügigen Zusatzmaßnahmen auf Basis der Grundkonstruktionen erfüllt.

Merkmale

Systemprüfungen / CE-Produktpass nach DIN EN 14351-1:2006+A2:2016

Allgemeine Information
Siehe Klassifizierung der jeweiligen WICSTYLE-Türserie

Technische Leistungen

Einbruchhemmung nach DIN EN 1627

  • Durch die Harmonisierung der einbruchhemmenden Normen in den europäischen Ländern wurden bestehende nationale Normen ersetzt. In Deutschland wurde beispielsweise im September 2011 die DIN 1627 durch die DIN EN 1627 abgelöst, die seit diesem Zeitpunkt gültig ist. Die Klassifizierung wurde dabei geändert auf die Klassen RC1N bis RC3. Diese sind jedoch nicht identisch mit den bisherigen Klassen WK1 bis WK3, da sich die Prüfanforderungen geändert haben.

Prüfungsergebnisse der WICONA Serien

  • Die neuen WICSTYLE 65 evo und WICSTYLE 75 evo Türserien wurden nach der neuen Norm DIN EN 1627 geprüft und können dadurch nach den aktuellen Anforderungen ausgeschrieben, verbaut und gekennzeichnet werden.
  • Die Vollpanik-Türen mit Doppelflügeln wurden erfolgreich bis zu RC3 getestet.

Einbruchhemmung nach DIN EN 1627 bzw. DIN 1627 / Klassifizierungen

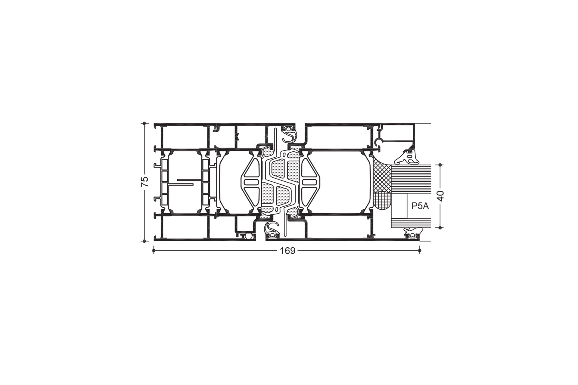
WICSTYLE 65 evo / 75 evo Anschlagtüren
WICSTYLE 65 evo / 75 evo Klassik-Design
WICSTYLE 65N, ungedämmt
RC1N, RC2N, RC2, RC3
RC1N, RC2N, RC2, RC3
WK1, WK2

KONTAKTIEREN SIE UNS

Haben Sie Fragen oder Anregungen, die Sie uns mitteilen möchten? Nehmen Sie jetzt Kontakt mit einem Experten auf, indem Sie auf den untenstehenden Link klicken.

Kontakt