Brandschutz
Mit der neuen WICLINE 75FP Brandschutzfenster Serie wird das WICONA Brandschutzprogramm komplettiert. Die Konstruktion basiert zu 100 % auf einer Standard WICLINE 75 Grundkonstruktion und ist optisch von dieser nicht zu unterscheiden. Die selbstschließende öffenbare Brandschutzverglasung ist ausführbar als Lochfenster, Fenster mit Umfeld oder integriert in die Pfosten-Riegel-Brandschutzfassade WICTEC 50FP.
Dokumentation
Merkmale
Luftdurchlässigkeit
Schlagregendichtheit
Widerstandsfähigkeit gegen Windlast
Bedienkräfte
Tragfähigkeit von Sicherheitsvorkehrungen
Mechanische Festigkeit
Dauerfunktion
Stoßfestigkeit
Qualitätsmanagement
Umweltmanagement
Class 4
E750
Class C4 / B4
Class 2
Fulfilled
Class 4
Class 2 (10 000 cycles)
Class 3
Certified according to ISO 9001:2008
Certified according to ISO 14001
Technische Leistungen
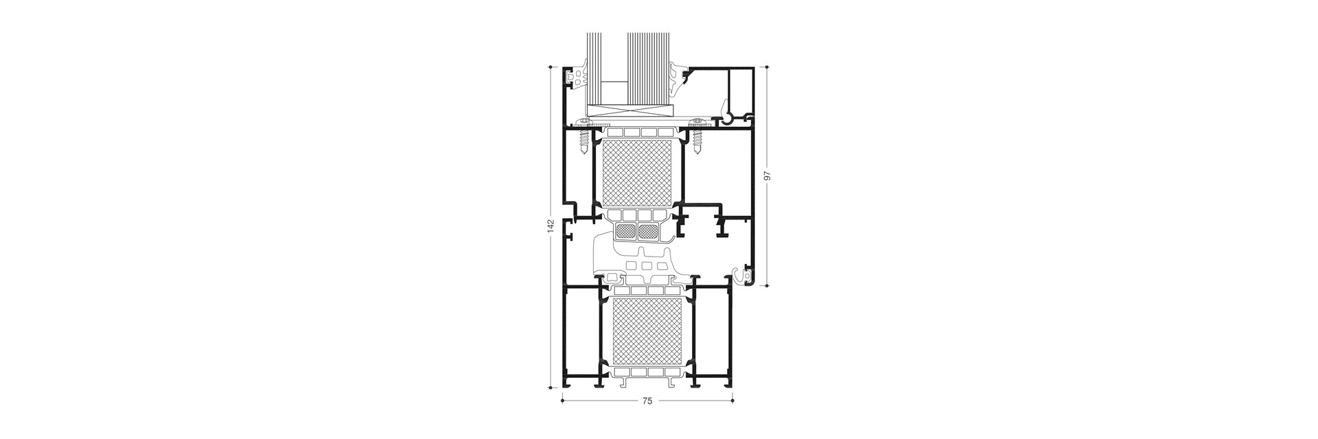
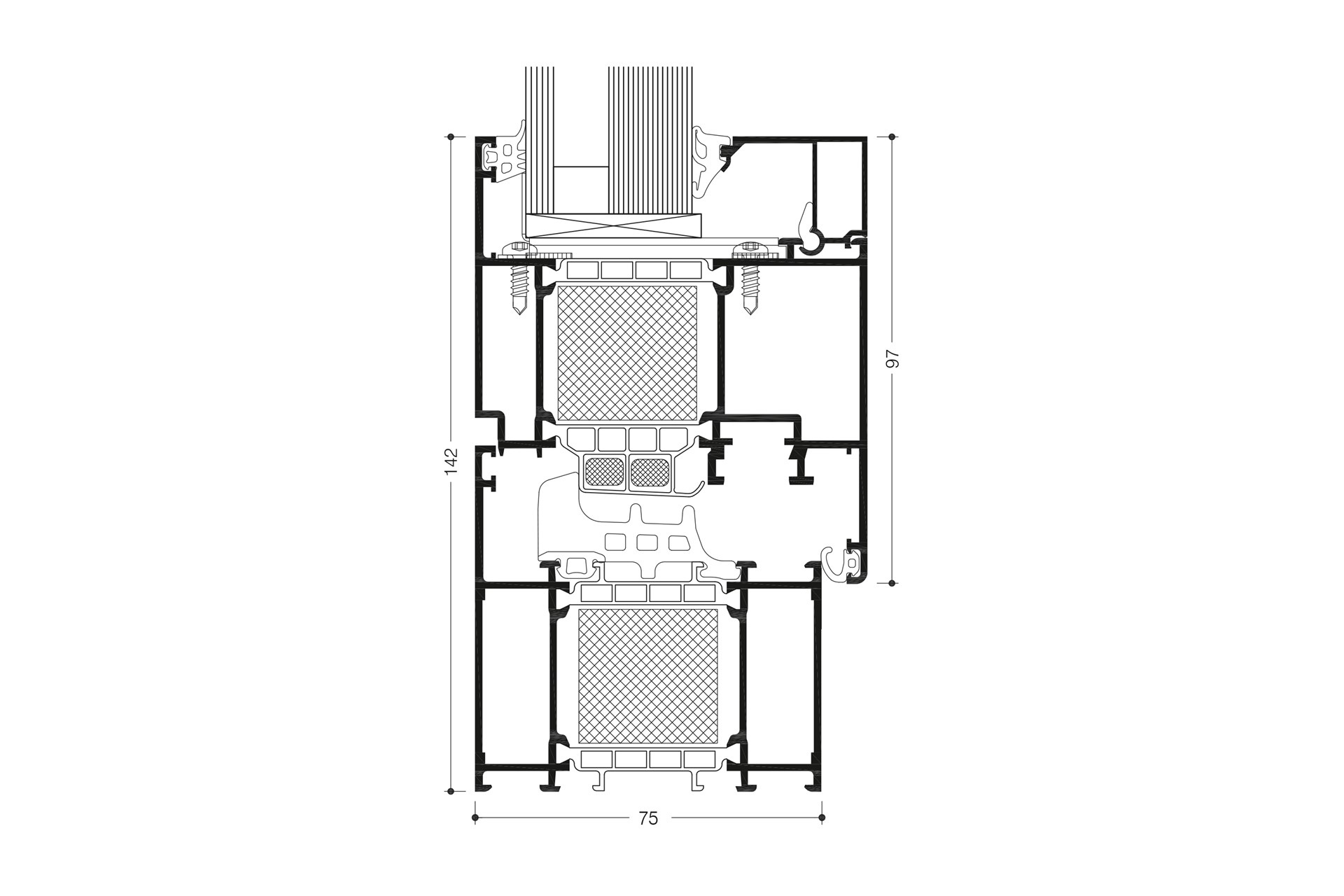
Profiltechnik
- CE-Kennzeichnung nach DIN EN 16034 EI2 30-C2Sa
- Ausführung in den Brandschutzklassen EI 30 oder EW 30 durch einfache Ergänzung mit Zubehörteilen
- Patentierte Eck- und Stoßverbindertechnik für hohe Bauteilfestigkeit
- Füllungsdicken bis zu 49 mm
- Optional mit Einspannblendrahmen für Integration in Pfosten-Riegel-Fassaden WICTEC 50FP
Wärmeschutz
- Uf-Werte: bis zu 1,3 W/(m²K)
Dichtungskonzept
- Mitteldichtung in drei Varianten:
- Umlaufender Einbau ohne Eckstücke
- Mit Formecken, ohne Verklebung der Stöße
- Eckvulkanisierte Rahmen
Beschläge
- Verdeckt liegende Einhandbeschläge, wahlweise mit verdeckt liegenden Bändern mit integrierter Endlagendämpfung, Öffnungswinkel 105°
- Flügelgewichte:
- Bis zu 160 kg
- Flügelformate (B x H): 1300 mm x 2300 mm


