WICLINE 95
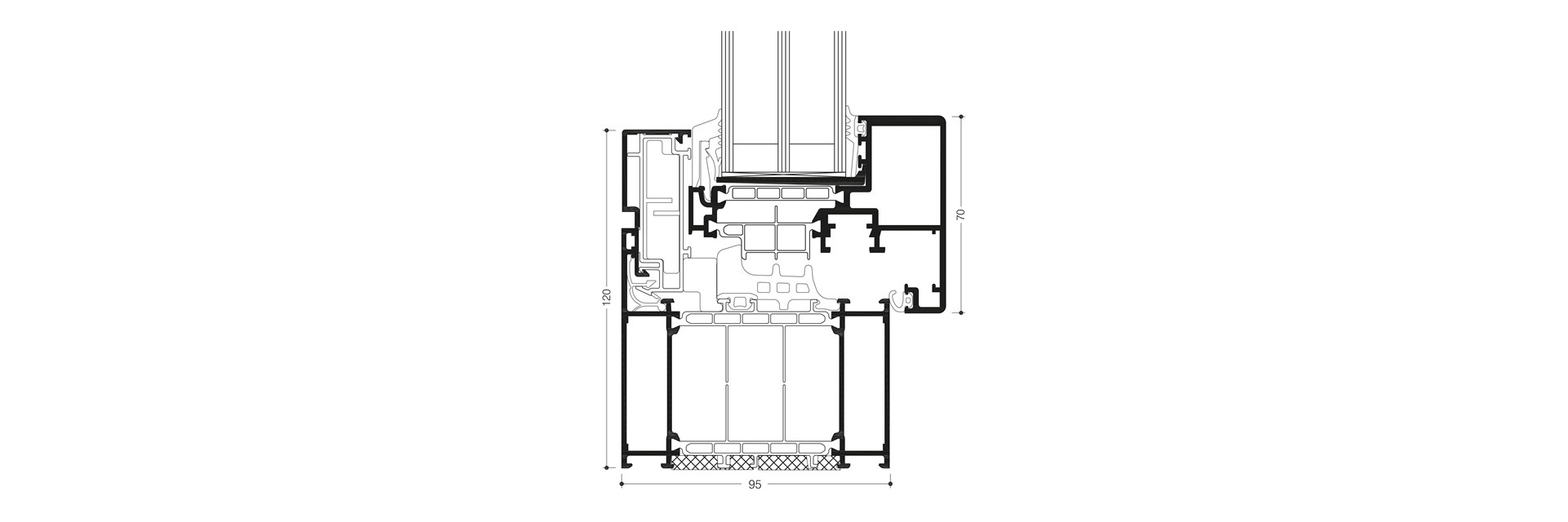
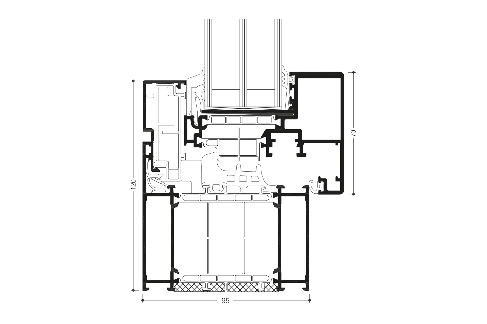
WICLINE 95 erfüllt die hohen Anforderungen des Passivhaus-Instituts von Dr. Feist in Darmstadt, Deutschland, und bietet dank seinem intelligenten Moduldesign maximale Flexibilität. Bei WICLINE 95 sitzt die Thermorahmenisolierung innen am Fenster und kann als Fensterflügelrahmen ausgeführt, sowie bequem vom Monteur mit intelligenter Clip-in-Technik installiert werden. Dies erlaubt eine variable Einstellung des Uf-Werts des Fensters.
Dokumentation
Merkmale
Systemprüfungen / CE-Produktpass nach DIN EN 14351-1:2006+A2:2016
Luftdurchlässigkeit
Schlagregendichtheit
Widerstandsfähigkeit gegen Windlast
Schallschutz
Bedienkräfte
Tragfähigkeit von Sicherheitsvorkehrungen
Mechanische Festigkeit
Dauerfunktion
Korrosionsbeständigkeit der Beschläge
Einbruchhemmung
Qualitätsmanagement
Klasse 4
E900
Klasse C5/B5
Rw (C;Ctr) = 47 (-1;-4) dB
Klasse 1
Erfüllt
Klasse 4
Klasse 3 (20 000 Zyklen)
Klasse 5
RC1N, RC2N, RC2, RC3
Zertifiziert nach DIN EN ISO 9001:2008
Technische Leistungen
Profiltechnik
- Hoch wärmegedämmtes Mehrkammersystem mit ETC Intelligence® Verbundzone, Passivhaus zertifiziert nach Effizienzklasse phB.
- Patentierte Eck- und Stoßverbindertechnik für hohe Bauteilfestigkeit
- Füllungsdicken bis 55 mm
Wärmeschutz
- Uf- Werte 0,68 bis 0,91 W/(m²K) für Festverglasungen mit einer Außenansichtsbreite von 65 bis 180 mm
- Uf- Werte 0,75 bis 0,88 W/(m²K) für Flügel-Blendrahmen-Kombinationen mit einer Außenansichtsbreite von 105 bis 260 mm
- Passivhaus Effizienzklasse phB, Uw und Uf = 0,80 W/(m²K) von nur 125 mm und 95 mm Installationstiefe für Fensterflügelrahmen
Dichtungskonzept
- Mitteldichtung in drei Varianten:
- Umlaufender Einbau ohne Eckstücke
- Mit Formecken, ohne Verklebung der Stöße
- Eckvulkanisierte Rahmen
Beschläge
- Verdeckt liegende Beschläge, wahlweise mit:
- aufliegenden Bändern, farbig beschicht- oder eloxierbar
- verdeckt liegenden Bändern mit integrierter Endlagendämpfung, Öffnungswinkel max. 105°
- Flügelgewichte bis 160 kg mit verdeckten oder aufliegenden Bänder
- Flügelformate (B x H): bis 1300 mm x 2250 mm
- Wahlweise mit Öffnungsbegrenzer
Systemkombinationen
- Über Einspannblendrahmen voll integrierbar in WICTEC Fassaden


