WICLINE 115 AFS
Mit dem neuen Verbundfenster-System WICLINE 115 AFS bietet WICONA Architekten, Planern und Metallbauern die Lösung für anspruchsvolle Projekte mit besonders hohen Anforderungen an den Wärme-, Schall- und Sonnenschutz – optimal im Neubau genauso wie in der Modernisierung.
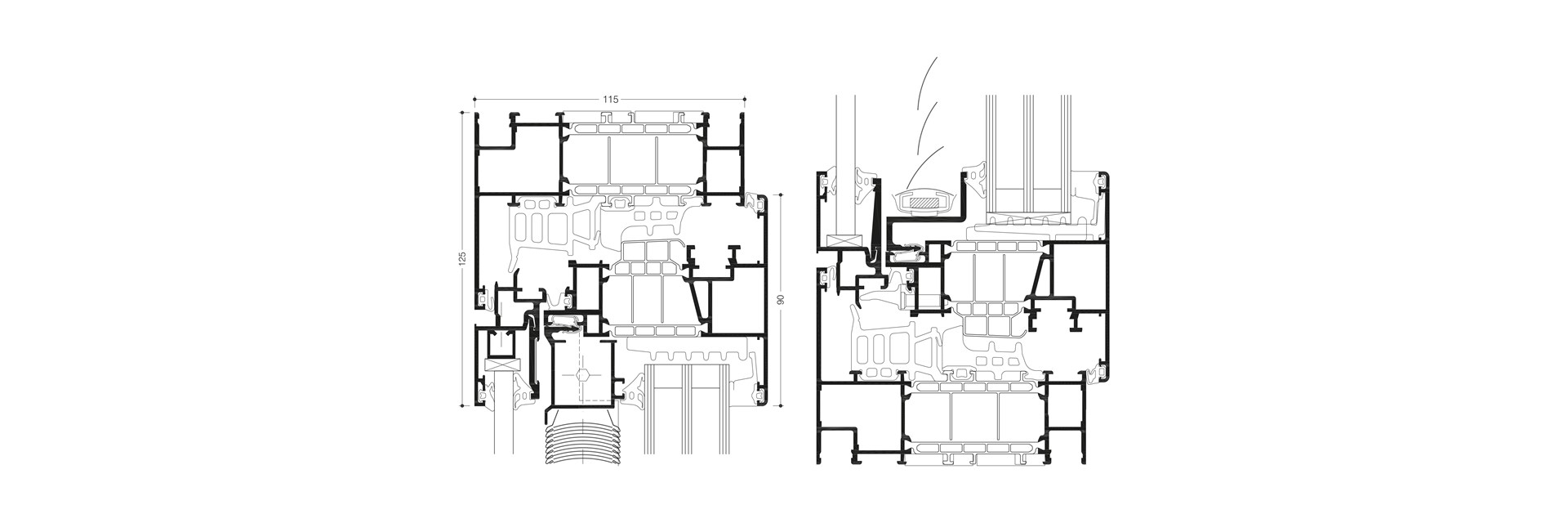
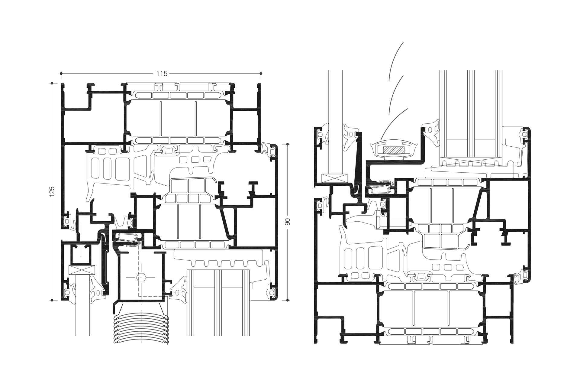
Das WICLINE 115 AFS-Fensterverbundsystem vereint einen Innen- und Außenfensterflügel und schafft so eine Kavität zwischen beiden, die die Wärme- und Schalldämmung ohne Zusatzmaßnahmen verbessert und Platz für ein motorisiertes Sonnenschutz bietet.
Dokumentation
Merkmale
Systemprüfungen / CE-Produktpass nach EN 14351-1:2010-08
Wärmedämmung Uf
Wärmedämmung Uw
Schallschutz
Luftdurchlässigkeit
Schlagregendichtheit
Widerstandsfähigkeit gegen Windlast
Mechanische Festigkeit
Dauerfunktion
Standard
EN ISO 10077-2
EN ISO 10077-1
EN ISO 717-1
EN 12207
EN 12208
EN 12210
EN 13115
EN 12400
Klasse
1.1 – 1.3 W/(m²K)
unter 0,80 W/(m²K)*
bis zu 50 (-1;-4) dB
4
bis zu E1200
bis zu C5/B5
bis zu 4
bis zu 3
* bei einer Normfenstergröße von 1230 mm x 1480 mm, Ug = 0,6 W/(m²K), psi = 0,031 W/(mK)
Technische Leistungen
Profiltechnik
- Profilbautiefe: 115 mm
- Gesamtbautiefe Profilsystem: 125 oder 135 mm
- Glasstärken bis zu 48 mm (58 mm) im Flügel und bis zu 100 mm im Festfeld einsetzbar
- Druckausgleich der Kavität
- Optimiertes Kondensationsverhalten in der Kavität, offiziell bestätigt durch das akkreditierte Prüfinstitut CSTB in Frankreich (Centre Scientifique et Technique du Bâtiment)
- Witterungsgeschützte, schmutzgeschützte und verdeckt liegende Integration der Jalousie, kein unerwünschter seitlicher Lichteinfall
- Größtmöglicher Bedienungskomfort
- Komfortable Montage, Wartung und Reinigung durch separat zu öffnenden Wartungsflügel
- Alternativer Flügel mit universeller Aufnahme für Sonnenschutz
Profilansichtsbreiten
- Blendrahmenprofile 84 mm bis zu 94 mm
- Kämpferprofile von 128 mm bis zu 158 mm
- Flügelprofile 35 mm
Wärmeschutz
- Uw-Werte unter 0,80 W/(m²K) bei einer Blendrahmentiefe von 115 mm und einer filigranen Ansichtsbreite von nur 125 mm, bei einer Normfenstergröße von 1230 mm x 1480 mm, Ug = 0,6 W/(m²K), psi = 0,031 W/(mK)
Schallschutz
- Bis 50 dB (Schallschutzglas innen, Einfach-Verglasung außen)
- Bis 43 dB (Standard-Isolierglas innen, Einfach-Verglasung außen)
Beschläge
- Hochwertige vollständig verdeckte Systembeschläge mit Direct-Positioning-System (DPS). Bauteilmontage in beliebiger Reihenfolge. Zulässige Flügelgewichte bis 200 kg mit verdeckten oder aufliegenden Bändern
- Flügelgewichte bis zu 200 kg
- Flügelformate (B x H): bis zu 1200 mm x 2500 mm
Öffnungsarten
- Drehfenster
- Dreh-Kippfenster
- Kippfenster
- Tilt-First-Fenster
- Festfeld


