WICLINE 65 evo / 75 evo
Ein elegantes Erscheinungsbild gepaart mit einer effizienten Lüftung kennzeichnen das Aluminium-Fenstersystem WICLINE evo in der Ausführung als Senk-Klappfenster. Verdeckt liegende Senk-Klapp-Scheren ermöglichen die Öffnung auswärts auch für großflächige Flügel. Spezielle Rahmenprofile für Lochfenster oder Einsatzflügel und verschiedene Scherengrößen sorgen für maximale Flexibilität.
Dokumentation
Merkmale
Systemprüfungen / CE-Produktpass nach DIN EN 14351-1:2006+A2:2016
Luftdurchlässigkeit
Schlagregendichtheit
Widerstandsfähigkeit gegen Windlast
Bedienkräfte
Mechanische Festigkeit
Dauerfunktion
Stoßfestigkeit
Qualitätsmanagement
Umweltmanagement
Klasse 4
E1200
Klasse C5 / B5
Klasse 1
Klasse 4
Klasse 2 (10 000 Zyklen)
Klasse 3
Zertifiziert nach ISO 9001:2008
Zertifiziert nach ISO 14001
Technische Leistungen
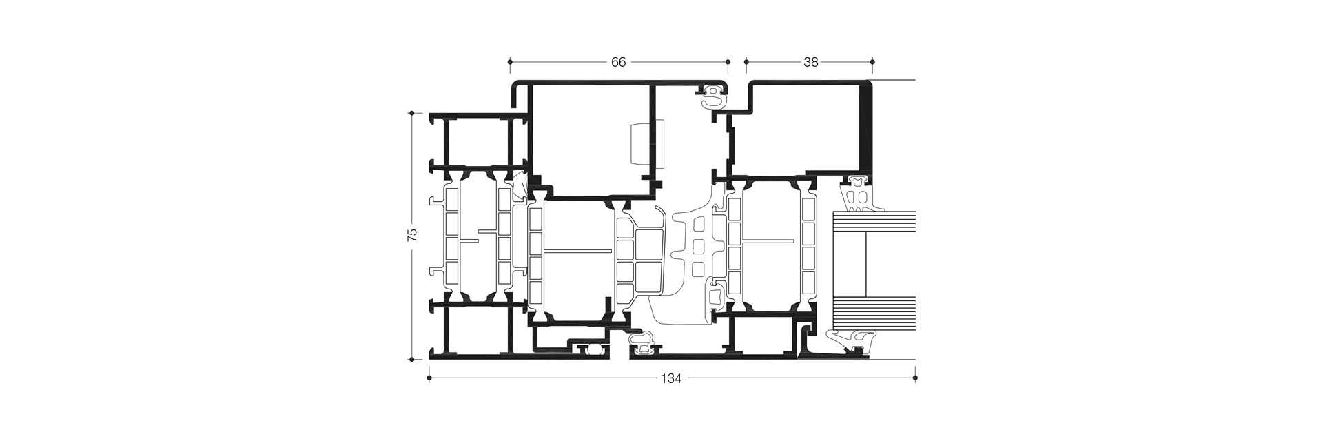
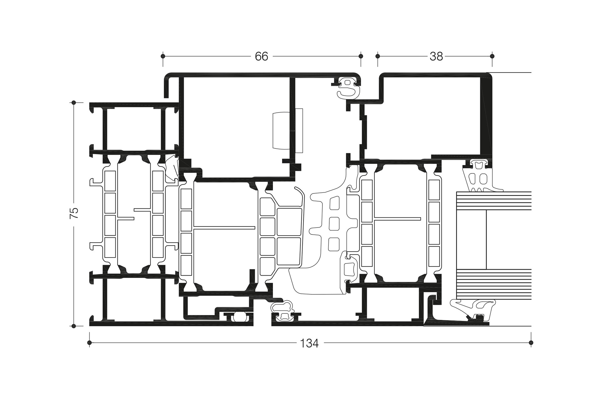
Profiltechnik
- Hoch wärmegedämmtes Mehrkammersystem mit symmetrischem Aufbau, qualitätsgesichert im Werksverbund hergestellt
- Patentierte Eck- und Stoßverbindertechnik für hohe Bauteilfestigkeit
- Füllungsdicken bis zu 69 mm
Wärmeschutz
- Uf-Werte: bis zu 1,5 W/(m²K)
- Uw-Werte: bis zu 1,0 W/(m²K) mit Dreifachglas
Dichtungskonzept
- Mitteldichtung mit geformten Ecken
Beschläge
- Verdeckte Fensterfassungen mit vertikaler Verstellung
- Bedienung wahlweise manuell oder motorisch
- Flügelgewichte: bis zu 150 kg
- Flügelformate (B x H): bis zu 2000 mm x 2200 mm


