WICLINE 65 evo/75 evo

Die Flügelöffnung nach außen bietet häufig wesentliche Vorteile: Effiziente Lüftung, kein störender Flügel im Rauminneren, manuelle oder motorisierte Bedienung. Mit sehr großformatigen möglichen Flügelmaßen und optimierten Funktionen bietet WICLINE evo in dieser Ausführung eine sehr interessante Alternative für die Architektur.

Merkmale

Systemprüfungen / CE-Produktpass nach DIN EN 14351-1:2006+A2:2016

Luftdurchlässigkeit
Schlagregendichtheit
Widerstandsfähigkeit gegen Windlast
Bedienkräfte
Tragfähigkeit von Sicherheitsvorkehrungen
Mechanische Festigkeit
Dauerfunktion
Stoßfestigkeit
Qualitätsmanagement
Umweltmanagement
Klasse 4
E1200
Klasse C5 / B5
Klasse 1
Erfüllt
Klasse 4
Klasse 2 (10 000 Zyklen)
Klasse 3
Zertifiziert nach ISO 9001:2008
Zertifiziert nach ISO 14001

Technische Leistungen

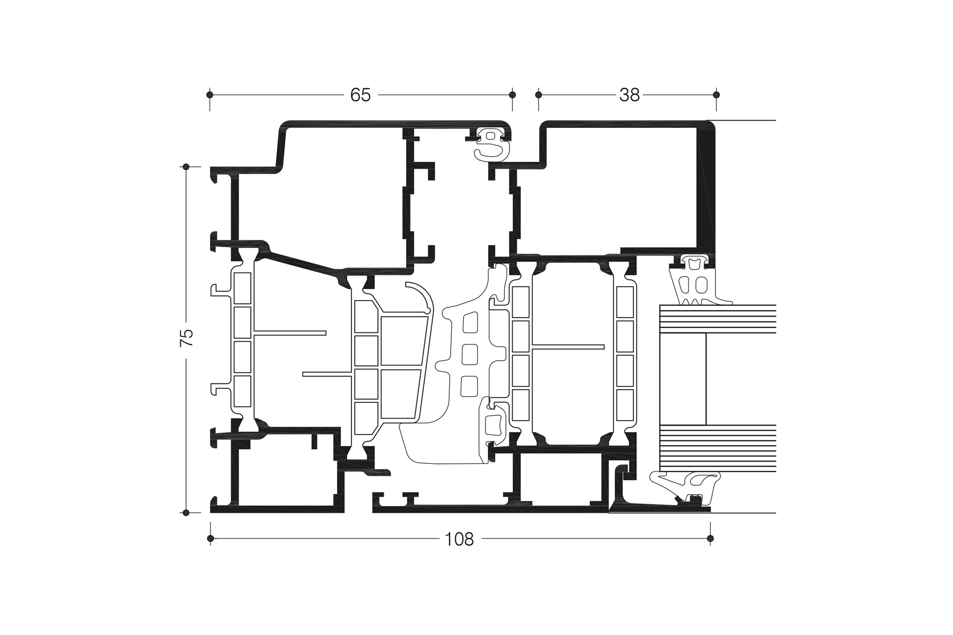
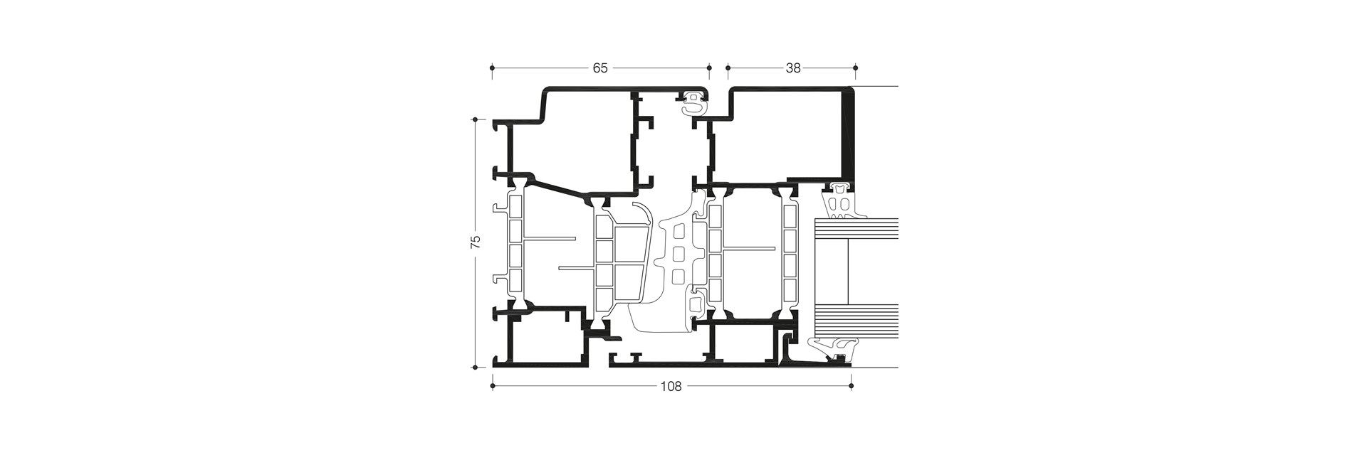
Profiltechnik

  • Hoch wärmegedämmtes Mehrkammersystem mit symmetrischem Aufbau, qualitätsgesichert im Werksverbund hergestellt
  • Patentierte Eck- und Stoßverbindertechnik für hohe Bauteilfestigkeit
  • Füllungsdicken bis zu 69 mm

Wärmeschutz

  • Uf values up to 1.5 W/(m²K)
  • Uw values up to 0.94 W/(m²K)

Dichtungskonzept

  • Mitteldichtung für hohe Dichte und verbesserte Wärmedämmung

Beschläge

  • Außenseitig aufliegende Bänder, entweder
    • Oberseitige Befestigung für Klappfunktion
    • Seitliche Befestigung für Drehfunktion
  • Bedienung wahlweise manuell oder motorisch
  • Flügelgewichte: bis zu 150 kg
  • Flügelformate (B x H): bis zu 2000 mm x 2000 mm

KONTAKTIEREN SIE UNS

Haben Sie Fragen oder Anregungen, die Sie uns mitteilen möchten? Nehmen Sie jetzt Kontakt mit einem Experten auf, indem Sie auf den untenstehenden Link klicken.

Kontakt