WICLINE 65 evo/75 evo

Die ideale Kombination: Pfosten-Riegel-Fassaden mit Aluminium-Einsatzflügeln der Serie WICLINE evo. Die flexiblen Systeme mit Spitzenwerten in den Leistungseigenschaften bieten individuelle Lösungen auf höchstem technischem und gestalterischem Niveau, angepasst mit einer großen Auswahl an zusätzlichen Funktionen.

Merkmale

Systemprüfungen / CE-Produktpass nach DIN EN 14351-1:2006+A2:2016 sowie nach DIN EN 13830

Allgemeine Information
Siehe Klassifizierung der WICLINE Fensterserien und der WICTEC Fassadenserien.

Technische Leistungen

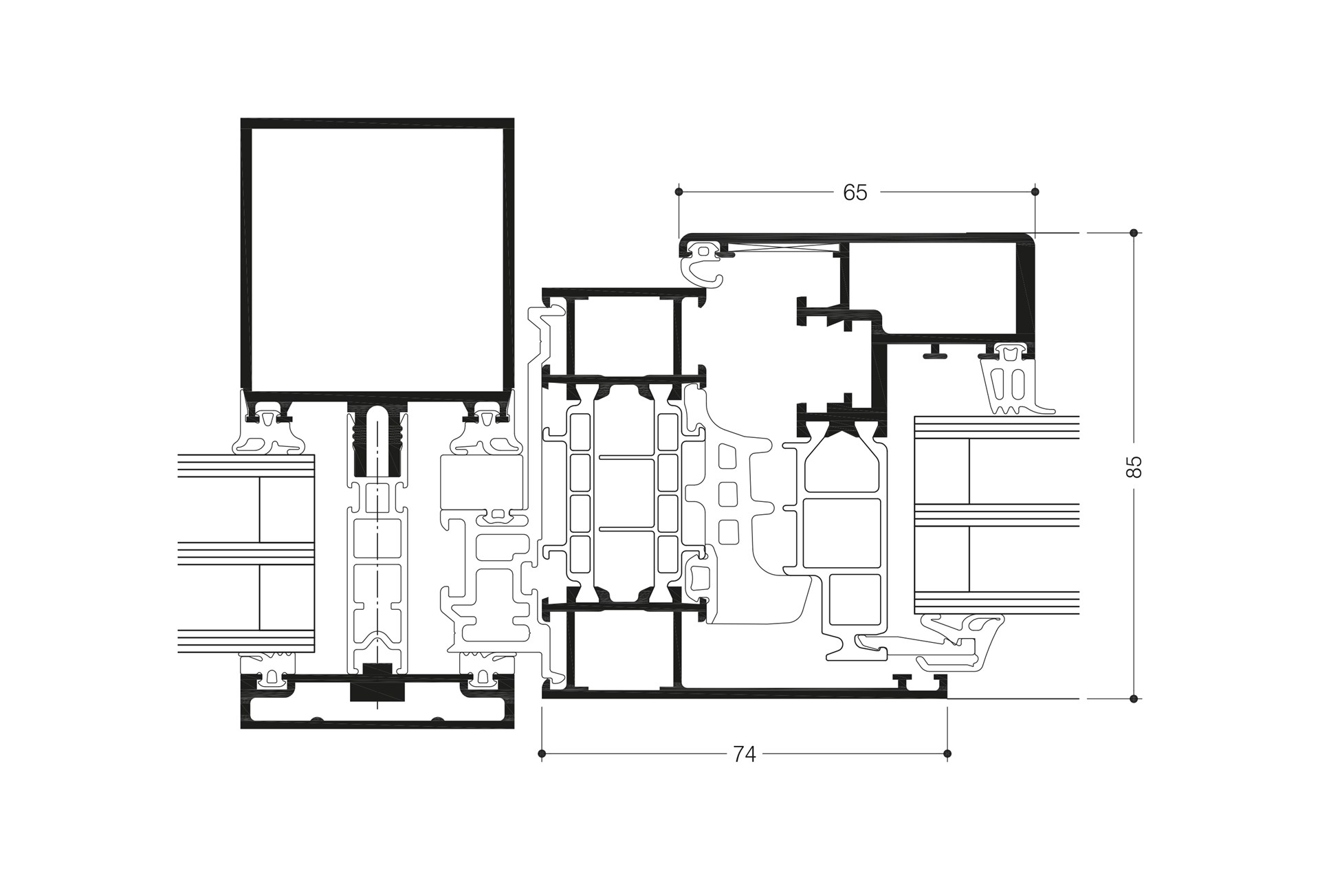
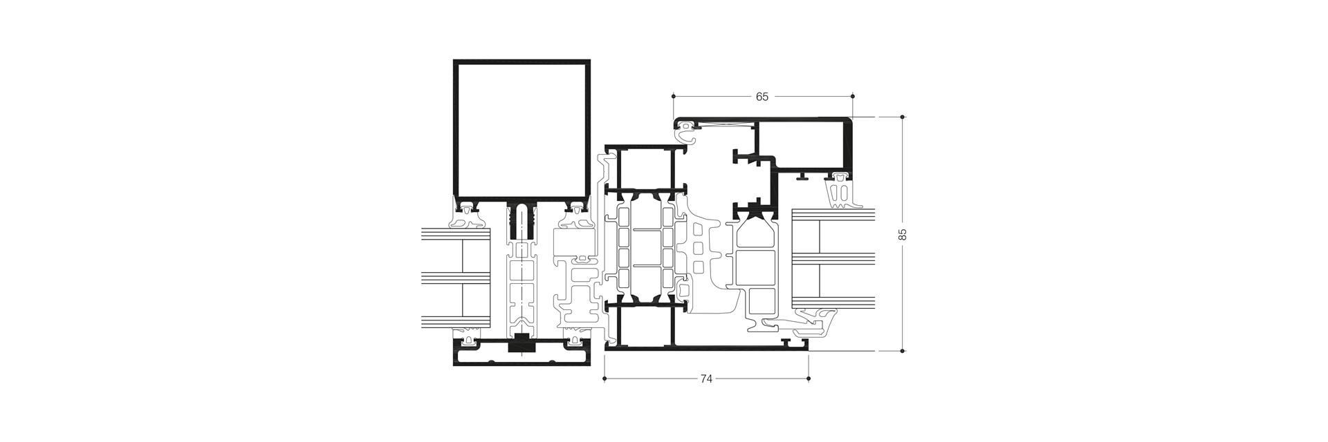
Profiltechnik

  • Hoch wärmegedämmtes Mehrkammersystem mit symmetrischem Aufbau, qualitätsgesichert im Werksverbund hergestellt
  • Patentierte Eck- und Stoßverbindertechnik für hohe Bauteilfestigkeit
  • Füllungsdicken bis zu 69 mm

Wärmeschutz

  • Siehe Werte der jeweiligen Fenster- und Fassadenserien

Ausführungen, einwärts öffnend

  • Dreh- / Dreh-Kipp- / Kippfenster
  • Verdeckter Flügel
  • Schwingfenster
  • Wendefenster
  • Einbruchhemmende Ausführung

Beschläge

  • Hochlastsystem-Beschlagteile mit:
    • aufliegenden Bändern, farbig beschicht- oder eloxierbar
    • verdeckt liegenden Bändern mit integrierter Endlagendämpfung, Öffnungswinkel max. 105°
  • Flügelgewichte:
    • Verdeckt liegende Bänder: bis zu 160 kg
    • Aufliegende Bänder: bis zu 200 kg
    • Auf Anfrage: bis zu 300 kg
  • Flügelformate (B x H): 1700 mm x 2500 mm
  • Wahlweise mit Öffnungsbegrenzer

Ausführungen, auswärts öffnend

  • Klappfenster
  • Dreh-Klapp-Fenster
  • Senk-Klapp-Fenster

Beschläge

  • Aufliegende Klapp-, Drehbänder
  • Verdeckt liegende Senk-Klapp-Scheren
  • Flügelgewichte: bis zu 150 kg
  • Flügelformate (B x H): bis 2000 mm x 2000 mm

KONTAKTIEREN SIE UNS

Haben Sie Fragen oder Anregungen, die Sie uns mitteilen möchten? Nehmen Sie jetzt Kontakt mit einem Experten auf, indem Sie auf den untenstehenden Link klicken.

Kontakt