WICLINE 75 TOP
WICLINE 75 TOP ist ein thermisch hochisolierendes Fenstersystem mit optimaler Performance, prozesssicherer Verarbeitung und Leistungsdaten auf Passivhaus-Niveau – kombiniert mit der gewohnt schlanken Optik eines 75 mm Fenstersystems.
Dokumentation
Merkmale
Systemprüfungen / CE-Produktpass nach DIN EN 14351-1:2006+A2:2016
Luftdurchlässigkeit
Schlagregendichtheit
Widerstandsfähigkeit gegen Windlast
Schallschutz
Bedienkräfte
Tragfähigkeit von Sicherheitsvorkehrungen
Mechanische Festigkeit
Dauerfunktion
Korrosionsbeständigkeit der Beschläge
Einbruchhemmung
Durchschusshemmung
Qualitätsmanagement
Klasse 4
E900
Klasse C5/B5
Rw (C;Ctr) = 47 (-1;-4) dB
Klasse 1
erfüllt
Klasse 4
Klasse 3 (20 000 Zyklen)
Klasse 5
RC1N, RC2N, RC2, RC3
FB4 S, FB4 NS (abhängig von Profilkombinationen)
Zertifiziert nach DIN EN ISO 9001:2008
Technische Leistungen
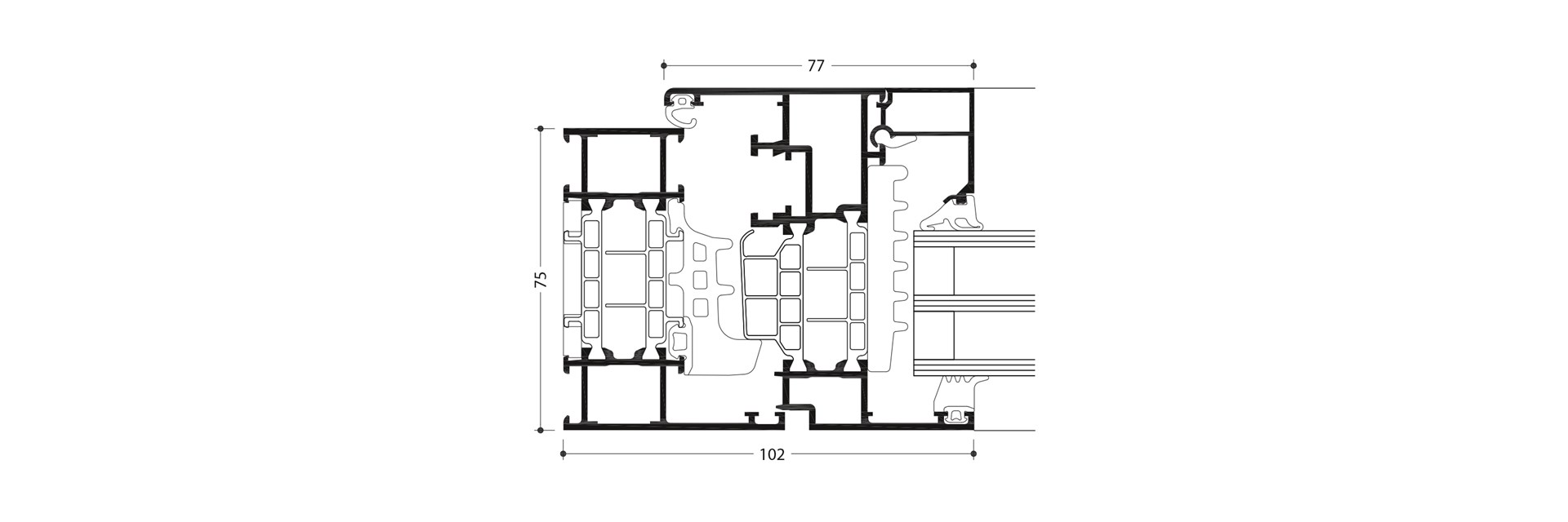
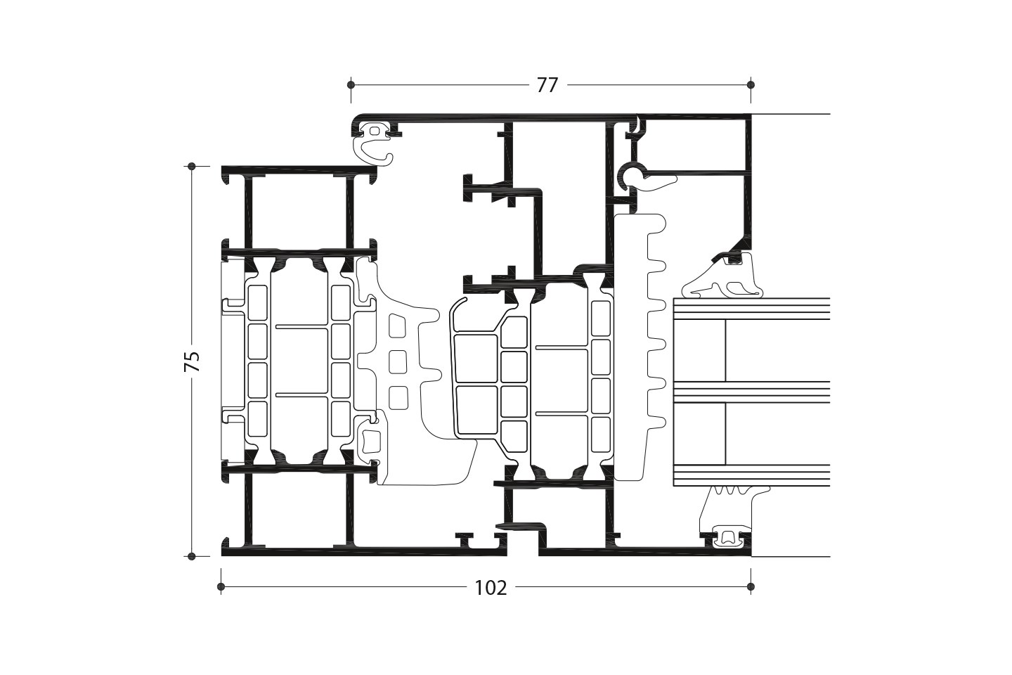
Profiltechnik
- Hoch wärmegedämmtes Mehrkammersystem mit ETC Intelligence® Verbundzone, welche Fensterkonstruktionen mit nur 75 mm Blendrahmentiefe auf Passivhaus-Niveau realisiert.
- Patentierte Eck- und Stoßverbindertechnik für hohe Bauteilfestigkeit
- Füllungsdicken bis 65 mm
Wärmeschutz
- Uf-Werte 0,79 bis 1,3 W/(m²K) für Festverglasungen mit einer Außenansichtsbreite von 48 bis 155 mm
- Uf-Werte 1,0 bis 1,2 W/(m²K) für Flügel-Blendrahmen-Kombinationen mit einer Außenansichtsbreite von 74 bis 142 mm
- Uw-Werte unter 0,80 W/(m²K)
Dichtungskonzept
- Mitteldichtung in drei Varianten:
- Umlaufender Einbau ohne Eckstücke
- Mit Formecken, ohne Verklebung der Stöße
- Eckvulkanisierte Rahmen
Beschläge
- Verdeckt liegende Beschläge, wahlweise mit:
- aufliegenden Bändern, farbig beschicht- oder eloxierbar
- verdeckt liegenden Bändern mit integrierter Endlagendämpfung, Öffnungswinkel max. 105°
- Flügelgewichte:
- Verdeckt liegende Bänder: bis zu 160 kg
- Aufliegende Bänder: bis zu 200 kg
- Auf Anfrage: bis zu 300 kg
- Flügelformate (B x H): bis zu 1700 mm x 2500 mm, Oberlicht bis zu
2500 mm x 1700 mm - Wahlweise mit Öffnungsbegrenzer
Weitere Ausführungen
- Verdeckter Flügel, Füllungsdicken bis zu 50 mm
- Einspannrahmen für Pfosten-Riegel-Fassaden
- Oberlicht mit Handhebel, Gelenkkurbel oder Motor
Systemkombinationen
WICLINE 75 TOP Fenster sind mit WICLINE 75 evo Fenstern, WICSTYLE 75 evo Türen und über Einspann-blendrahmen mit den aktuellen WICTEC-Fassaden kombinierbar


