WICLINE 65 evo / 75 evo

Mit erweiterten Fensterformaten, Einfach- oder Doppelfassungsoption und barrierefreier Schwelle bietet diese nach innen oder außen öffnende Aluminium-Fenstertür Gestaltungsfreiheit. Hohe technische Leistungswerte und vorbildliche Wärmedämmung setzen neue Zeichen.

Merkmale

Systemprüfungen / CE-Produktpass nach DIN EN 14351-1:2006+A2:2016

Luftdurchlässigkeit
Schlagregendichtheit
Widerstandsfähigkeit gegen Windlast
Bedienkräfte
Mechanische Festigkeit
Korrosionsbeständigkeit der Beschläge
Dauerfunktion
Qualitätsmanagement
Umweltmanagement
Einwärts öffnend
Klasse 4
Einflügelig: 9A Zweiflügelig: 7A
Bis Klasse C5 / B5
Klasse 1
Klasse 4
Klasse 5
Klasse 2 (10 000 Zyklen)
Zertifiziert nach ISO 9001:2008
Zertifiziert nach ISO 14001
Auswärts öffnend
Klasse 4
7A
Klasse C3 / B3
Klasse 1
Klasse 4
Klasse 2 (10 000 Zyklen)
Zertifiziert nach ISO 9001:2008
Zertifiziert nach ISO 14001

Technische Leistungen

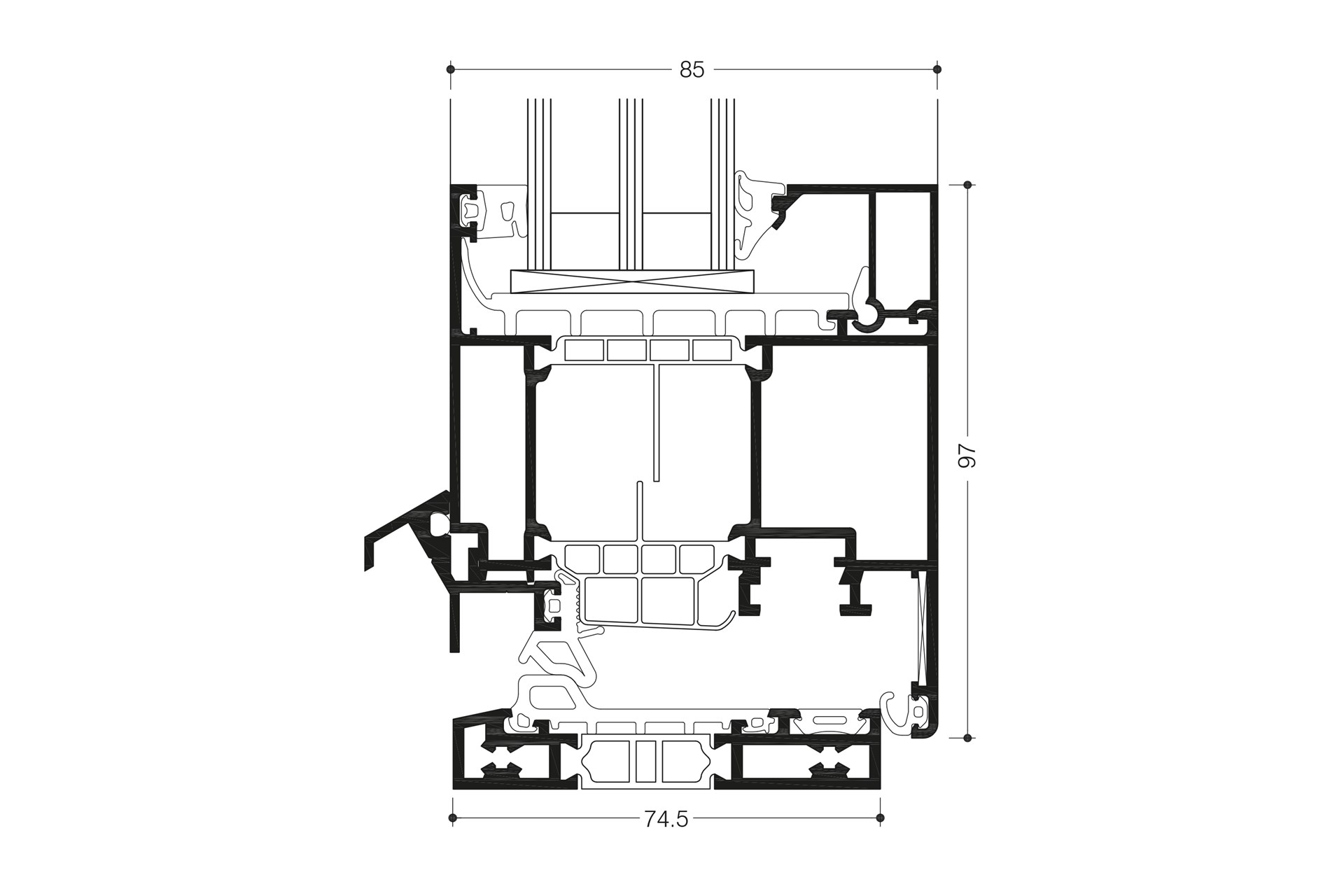
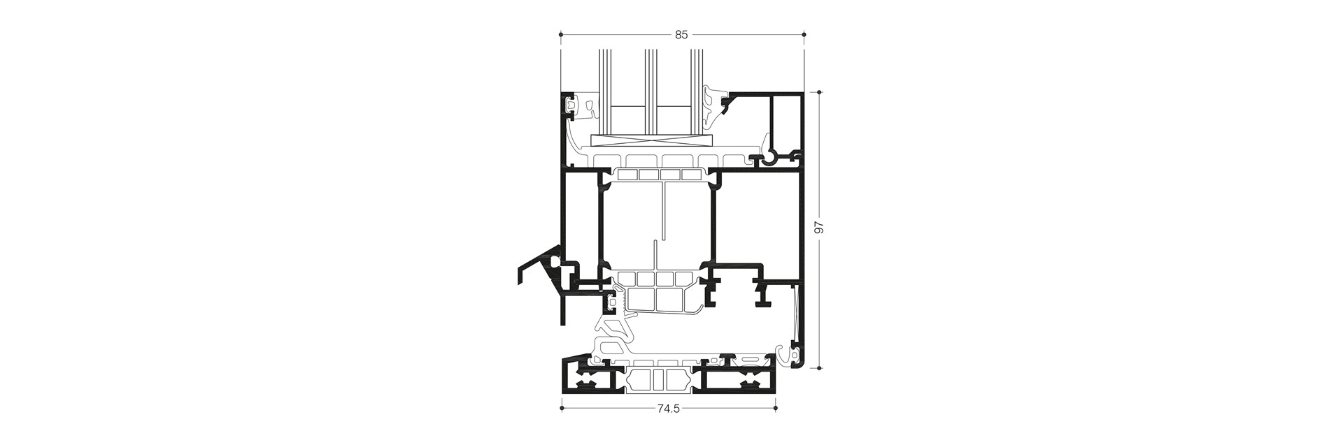
Profiltechnik

  • Hoch wärmegedämmtes Mehrkammersystem mit symmetrischem Aufbau, qualitätsgesichert im Werksverbund hergestellt
  • Patentierte Eck- und Stoßverbindertechnik für hohe Bauteilfestigkeit
  • Füllungsdicken bis zu 69 mm
  • Barrierefreie, wärmegedämmte Schwelle

Wärmeschutz

  • Uf-Werte: bis zu 1,3 W/(m²K)

Dichtungskonzept

  • Mitteldichtung in drei Varianten:
    • Umlaufender Einbau ohne Eckstücke
    • Mit Formecken, ohne Verklebung der Stöße
    • Eckvulkanisierte Rahmen dreiseitig

Beschläge

  • Wahlweise einwärts oder auswärts öffnend
  • Einflügelige oder zweiflügelige Ausführung möglich
  • Öffnungsoption nach innen mit Schwerlast-Beschlagteilen, aufliegenden Bändern, farbig beschichtet- oder eloxierbar
  • Flügelgewichte:
    • Bis zu 130 kg
  • Flügelformate (B x H):
    • Einwärts öffnend bis zu 1400 mm x 2500 mm
    • Auswärts öffnend bis zu 1300 mm x 2250 mm
  • Wahlweise mit Öffnungsbegrenzer

Kompatibel mit den Türserien WICSTYLE 65 evo und WICSTYLE 75 evo

KONTAKTIEREN SIE UNS

Haben Sie Fragen oder Anregungen, die Sie uns mitteilen möchten? Nehmen Sie jetzt Kontakt mit einem Experten auf, indem Sie auf den untenstehenden Link klicken.

Kontakt