WICLINE 75 evo
Dokumentation
Merkmale
Systemprüfungen / CE-Produktpass nach DIN EN 14351-1:2006+A2:2016
Technische Leistungen
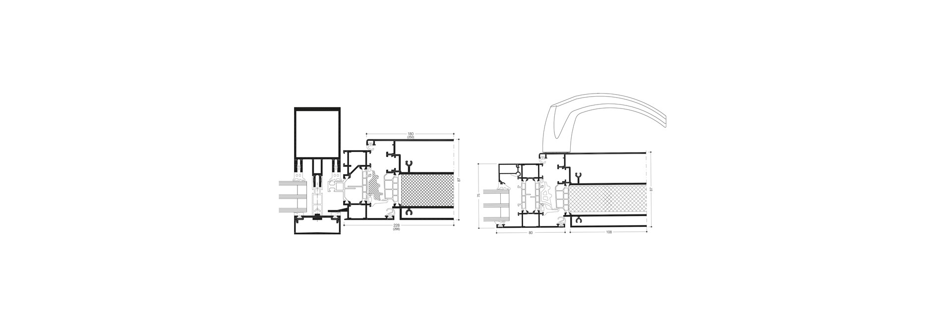
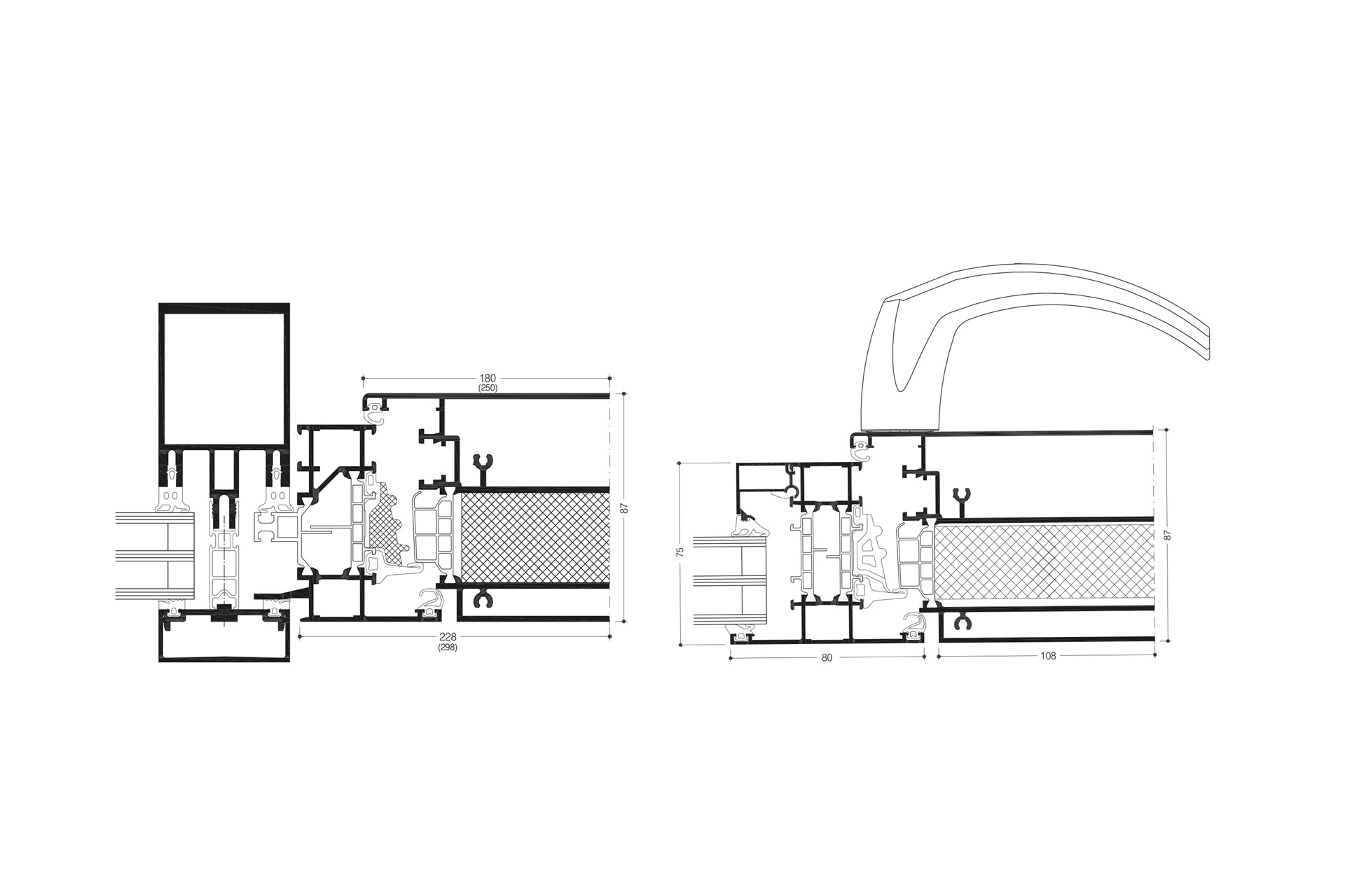
Profiltechnik
- Flügelbreiten von 170 bis 330 mm, Standardmasse 180 und 250 mm
- Max. Flügelformate (B x H): 180 mm x 3000 mm oder 250 mm x 3000 mm
- Schnelle und wirtschaftliche Anpassung der Flügelbreite im Objekt
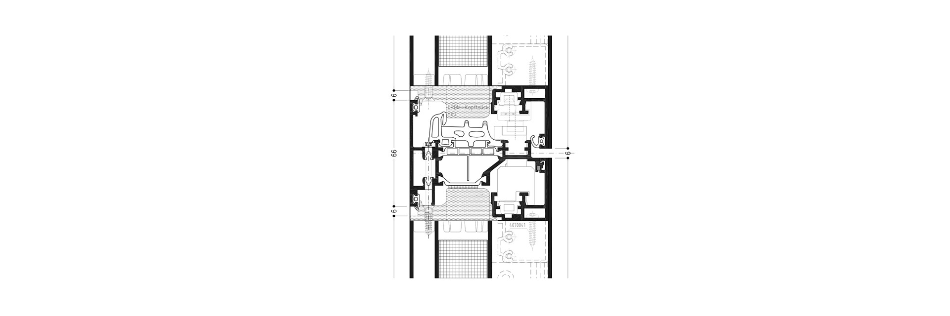
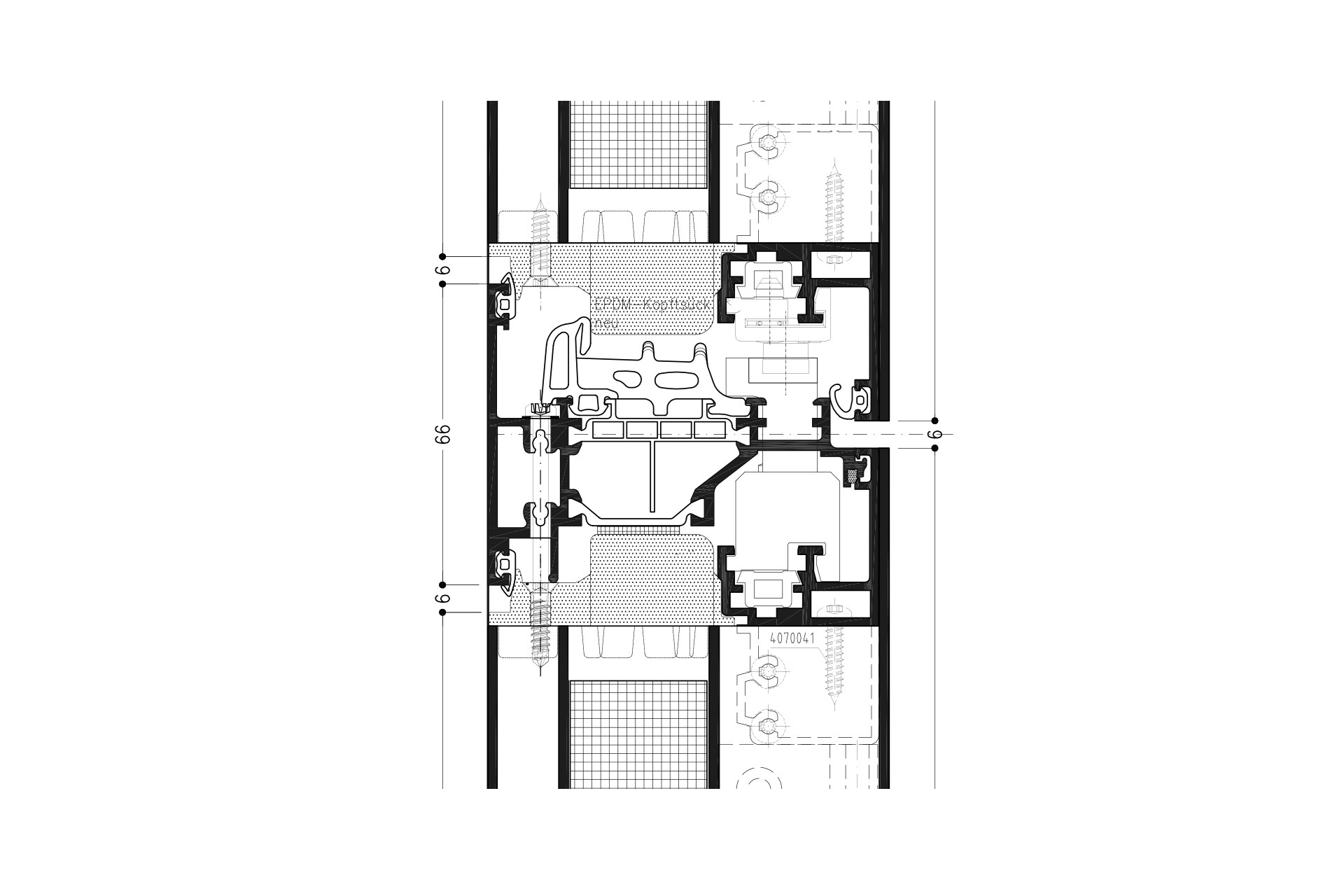
- Schmalste umlaufende Schattenfuge zwischen Flügel und Blendrahmen - nur 6 mm wie bei Standard WICONA Fenstern
- 3 m Flügelhöhe inkl. Einbruchhemmung bis RC2
- Einfache und rationelle Bearbeitungen, ausschließlich durch 90° Säge bzw. Klinkschnitte
- Umfangreiche Systemprüfungen nach DIN EN 14351-1, belegen die hohe Qualität der Systemtechnik
Wärmeschutz
- Uf-Wert bis zu 1,2 W/(m²K)
Beschläge
- Hochwertige Systembeschläge mit Direct-Positioning-System (DPS). Bauteilmontage in beliebiger Reihenfolge, wahlweise:
- Aufliegende Bänder, farbig beschicht- oder eloxierbar
- Verdeckt liegende Bänder mit integrierter Endlagendämpfung
- Flügelgewichte: 80 kg
- Optional Öffnungsbegrenzer
- Einbruchhemmung RC1N, RC2N und RC2
Verdeckter kettenloser Antrieb
- Maximaler Lüftungsquerschnitt durch 90° Öffnung
- Wartungsfrei und manipulationssicher
- Einstellbarer Öffnungswinkel
- Ansteuerung über Lüftertaster, Fernbedienung oder Gebäudeautomation
- Unsichtbare Notentriegelung
- Keine in die Öffnungsfläche ragenden Motorketten
Geteilte Lüftungsklappe
Mit einem wärmegedämmten Aluminium-Drehflügel ohne Verglasung für die Integration in Pfosten-Riegel-Fassaden oder Fensterkonstruktionen erfüllt die WICLINE evo Lüftungsklappe den häufigen Wunsch nach schmalen und hohen Öffnungselementen. Auch ist eine vollmotorischer Version oder herkömmlich mit einer manueller Bedienung möglich nun, eine Version der bewährten Lüftungsklappe, auch als geteilte Version erhältlich. Diese wurde erfolgreich auf Luftdichtheit, Schlagregendichtheit und Windwiderstand geprüft.
-
Neu Lüftungsklappen, WICLINE 75evo Objektprofil FAB 330 mm, 2-teilig in horizontaler Stulp-Ausführung
-
Über Raumhöhe horizontal 2-geteiltes Öffnungs-Drehfenster, ohne feststehendes Mittelteil (Kämpfer)
-
Neue Öffnungsart, Patent in Anmeldung
-
Beschlag-Lösung aus System- Beschlägen, zzgl. Neukonstruktion einer Mitnehmergarnitur
-
Bedienung über einen Griff am oberen Flügel, Funktion entweder alles geöffnet oder nur oberer Flügel
-
System-Prüfungen: Luftdichtheit Klasse 4 Wasserdichtheit 9A Widerstand gegen Wind C5
-
Pendelschlagversuch (Absturzsicherheit), Einbruchhemmung (bis RC3) in Vorbereitung
Für weitere Informationen kontaktieren Sie uns gerne.




