WICTEC 50A
In bestimmten Fällen ist es aus ästhetischen oder statischen Gründen von Vorteil, Pfosten-Riegel-Fassadenbereiche mit Tragkonstruktionen aus Holz oder Stahl auszuführen.
WICTEC 50A als Aufsatzvariante ermöglicht die direkte Verglasung auf solchen Tragkonstruktionen. Damit bietet WICTEC die freie Wahl des Tragwerkstoffes, Aluminium, Stahl oder Holz, bei identischer Außenansicht und Verglasungstechnik der Fassade.
Dokumentation
Merkmale
Systemprüfungen / CE-Produktpass nach DIN EN 13830 / Bauaufsichtliche Zulassungen
Luftdurchlässigkeit
Schlagregendichtheit
Widerstandsfähigkeit gegen Windlast
Stoßfestigkeit
Einbruchhemmung
Durchschusshemmung
Qualitätsmanagement
Umweltmanagement
Klasse AE
RE 1200
2000 / –3200,
Sicherheit 3000 / –4800 Pa
Klasse E5 / I5
RC1N, RC2N, RC2
FB4
Zertifiziert nach ISO 9001:2008
Zertifiziert nach ISO 14001
Technische Leistungen
Systembreite
Breite Tragprofile
Tragkonstruktion
50 mm
ab 50 mm
Holzprofile, Stahlrohre, Offene Stahlprofile
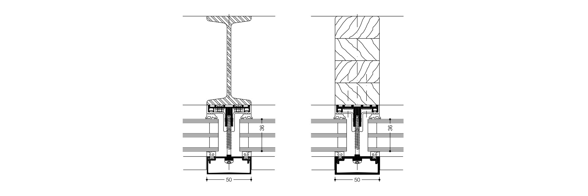
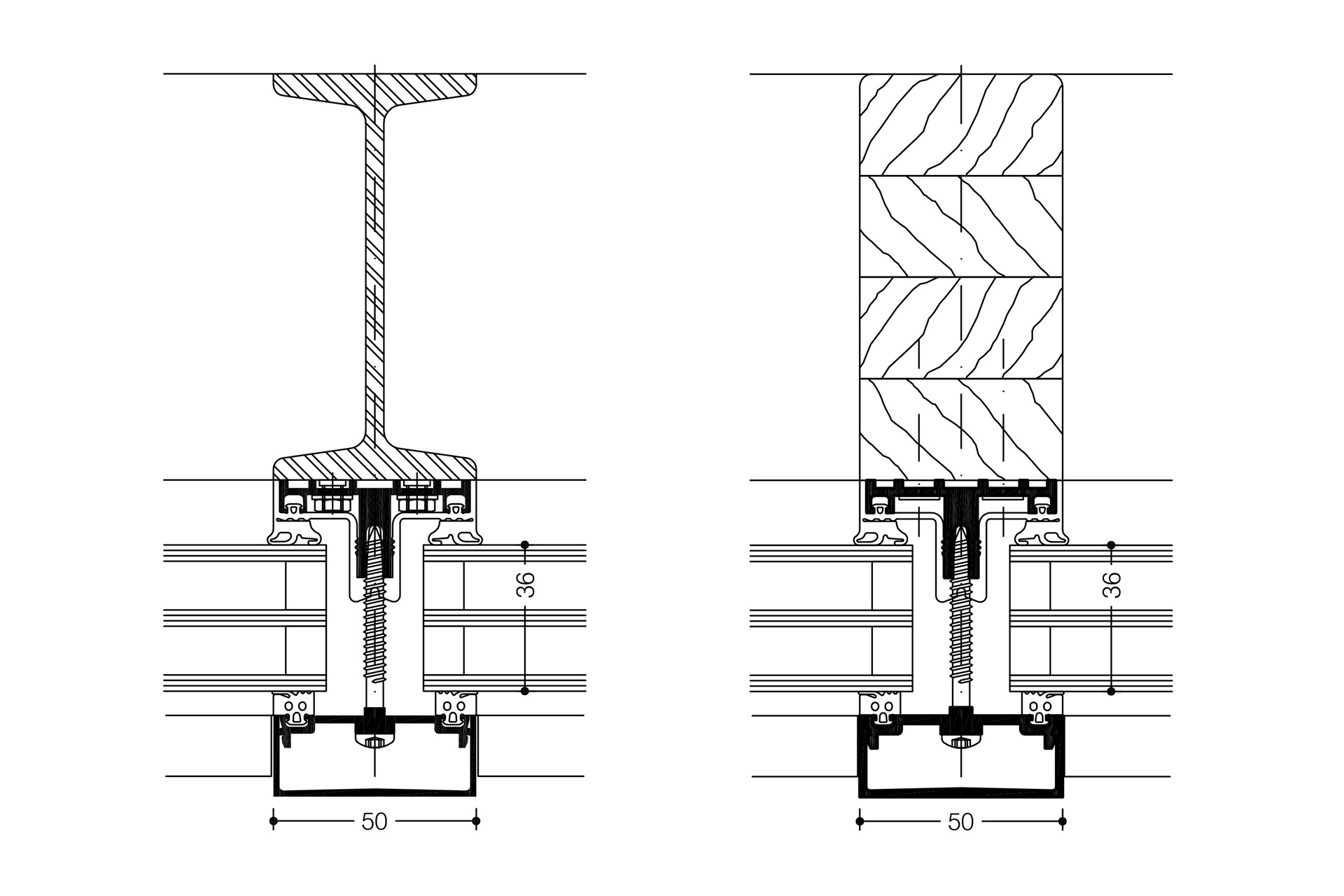
Konstruktionsbeschreibung
- Freie Wahl des Werkstoffes (Stahl oder Holz), für Profilbreiten ab 50 mm
- Für Pfosten und Riegel gleiches Aufsatzprofil
- Überlappung über senkrechte und horizontale einteilige, profilüberspannende Dichtprofile
mit unterschiedlichen Entwässerungsebenen - Einfache und rationelle Befestigung des Aluminiumprofils durch Schrauben
- Bei Stahlunterkonstruktionen ab 4 mm Wandstärke alternativ einfache Befestigung durch Setzbolzentechnik
- Ideal für senkrechte Fassaden, Polygonfassaden, Schrägverglasungen und Raumstrukturen
- Gestaltungsmöglichkeiten mit verdeckten oder sichtbaren Verschraubungen


