WICTEC EL60

WICTEC EL60 ist die filigrane Version der Elementfassade mit besonders schlanken Ansichtsbreiten von nur 60 mm innen und außen. Die elegante Optik mit „Bilderrahmeneffekt“ wird durch die von außen aufgesetzten Glasleisten mit Gehrung erzielt. Durch die optimierte Wärmedämmung setzt das System mit hervorragenden Ucw-Werten bis zu 0,9 W/(m²K) Zeichen.

Merkmale

Systemprüfungen / CE-Produktpass nach DIN EN 13830 / Bauaufsichtliche Zulassungen

Luftdurchlässigkeit
Schlagregendichtheit
Widerstandsfähigkeit gegen Windlast
Stoßfestigkeit
Qualitätsmanagement
Umweltmanagement
Klasse AE
RE 1200
2000 / –3200 Pa, Sicherheit 3000 / –4800 Pa
Klasse E5 / I5
Zertifiziert nach ISO 9001:2008
Zertifiziert nach ISO 14001

Technische Leistungen

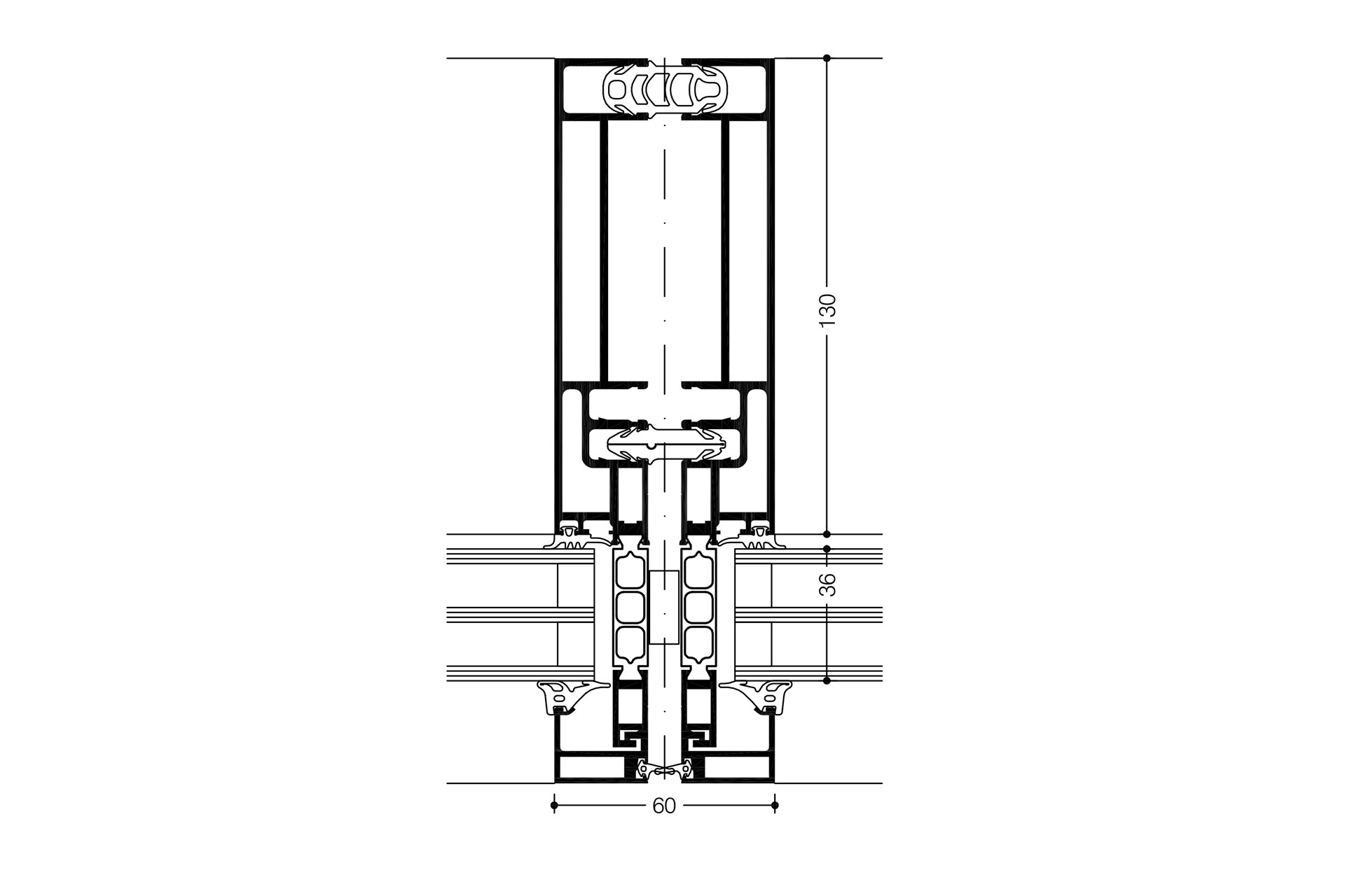
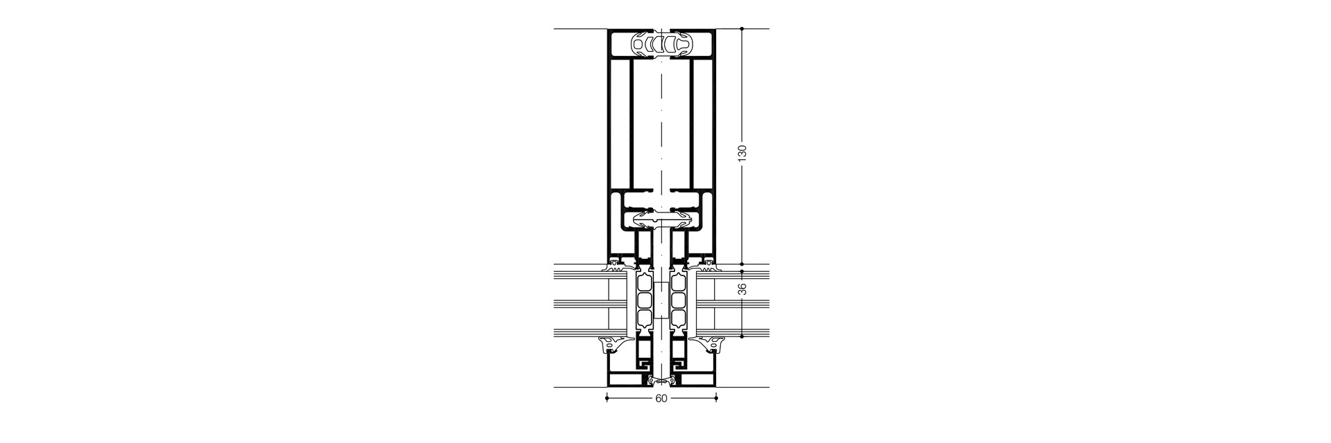
Systembreite
Profiltiefe
Wärmedämmung
Füllungsdicken
Elementgrößen
60 mm
198 mm
Uf bis zu 1,6 W/(m²K) / Ucw bis zu 0,9 W/(m²K)
bis zu 36 mm als Standardsystem, darüber individuell anpassbar
(B x H) bis zu 2800 mm x 3500 mm, ohne Mittelpfosten bis 1500 mm Breite

Konstruktionsbeschreibung

  • WICTEC EL60 ist eine Basiskonstruktion und kann an objektspezifische Anforderungen individuell angepasst werden
  • Herstellung der Elemente unter Werkstattbedingungen ohne Witterungseinfluss, dadurch gleichbleibend höchste Qualität
  • Schnelle und präzise planbare Montage vor Ort
  • Hoch wärmegedämmte Aluminium-Verbundprofile in qualitäts- und güteüberwachtem Werksverbund
  • Schmale Ansichtsbreiten von 60 mm bei geteilten und ungeteilten Profilen, damit gleichbleibende Optik
  • Gleiche Profiltiefe bei Pfosten und Riegel
  • Zuverlässige und hochfeste Eckverbindung mit Eckwinkeln
  • Einfaches Einhängen der Elemente am Bau in vorher ausgerichtete Fassadenanker aus dem Systemprogramm

KONTAKTIEREN SIE UNS

Haben Sie Fragen oder Anregungen, die Sie uns mitteilen möchten? Nehmen Sie jetzt Kontakt mit einem Experten auf, indem Sie auf den untenstehenden Link klicken.

Kontakt