WICTEC EL evo

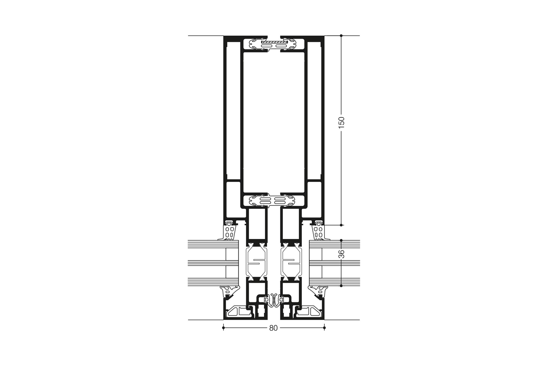
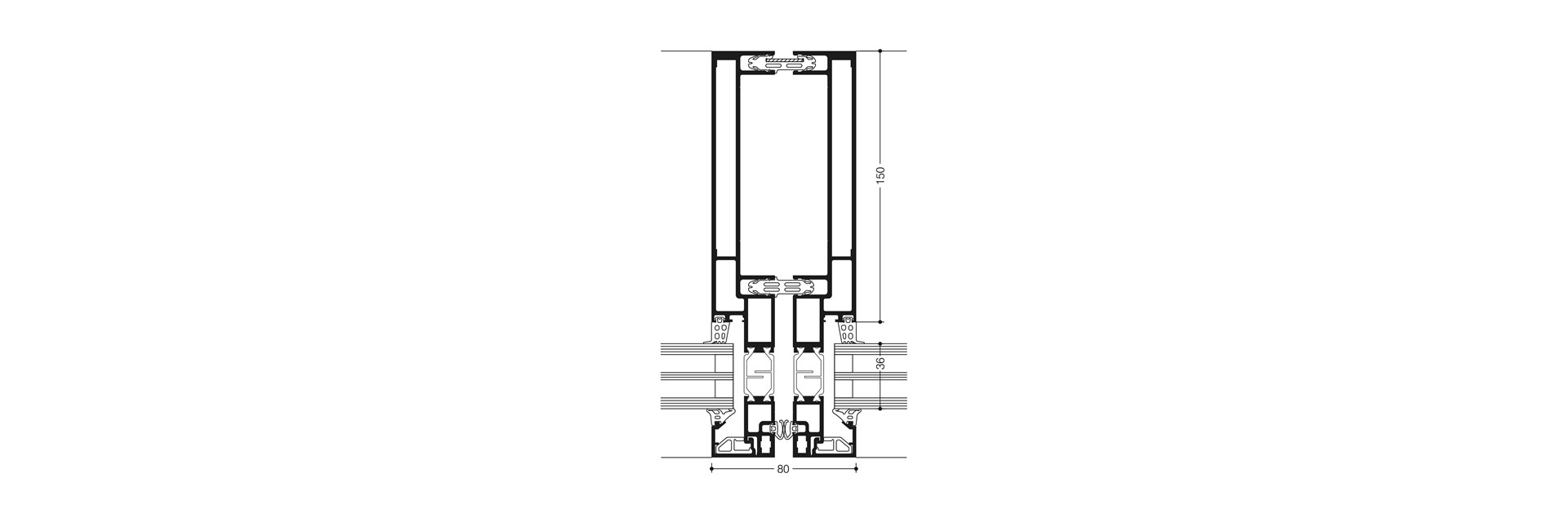
WICTEC EL evo ist ein innovatives modularisiertes Fassadensystem, dass individuell an projektspezifische Anforderungen angepasst werden kann. Die Bauteile werden in kontrollierter Werkstattumgebung und ohne Einfluss von externen Faktoren wie z. B. Wetter gefertigt, sodass eine durchgehend hohe Qualität erreicht wird. Somit ist eine schnelle, einfache und planbare Montage vor Ort möglich. Die Aluminumverbundprofile mit herausragender Wärmedämmung sind aus einer qualitativ hochwertigen, überwachten Produktion. Alle neuen Drainagesysteme mit Randabschalung verwenden die patentierte „Federdichtung“ in horizontalen Fugen zwischen den Elementen ohne das Profildesign zu beeinträchtigen. Dies ermöglicht schmale Rahmenansichtsbreiten selbst bei extremen Gebäudebewegungen.

Merkmale

Systemprüfungen / CE-Produktpass nach DIN EN 13830 / Bauaufsichtliche Zulassungen

Luftdurchlässigkeit
Schlagregendichtheit
Widerstandsfähigkeit gegen Windlast
Stoßfestigkeit
Qualitätsmanagement
Umweltmanagement
Klasse AE
RE 1200
2000 / –3200, Sicherheit 3000 / –4800 Pa
Klasse E5 / I5
Zertifiziert nach ISO 9001:2008
Zertifiziert nach ISO 14001

Technische Leistungen

  • WICTEC EL evo ist ein fortschrittliches modulares System und kann individuell an projektspezifische Anforderungen angepasst werden
  • Modulabmessungen (B x H): 3380 mm x 3810 mm
  • Schmale Ansichtsbreiten selbst bei hohen Gebäudebewegungen, bis zu +15/-12 mm
  • Schmale Ansichtsbreiten
  • Gleiche Profiltiefe für Pfosten und Riegel
  • Verlässliche, hochfeste Eckverbindungen mit Eckwinkeln
  • Fertigung vollständiger Bauteile in der Werkstatt für durchgängig hohe Produktqualität
  • Schnelle, einfache und planbare Montage vor Ort
  • Aluminiumverbundprofile mit zweiteiliger Wärmedämmung

KONTAKTIEREN SIE UNS

Haben Sie Fragen oder Anregungen, die Sie uns mitteilen möchten? Nehmen Sie jetzt Kontakt mit einem Experten auf, indem Sie auf den untenstehenden Link klicken.

Kontakt