WICSLIDE 65

Das WICSLIDE 65 Schiebesystem verbindet auf elegante Weise großzügige Abmessungen mit hervorragenden thermischen Eigenschaften. Viele Details ermöglichen es, jede einzelne Anlage individuell zu gestalten. Zahlreiche Profilkombinationen bieten Ihnen mehr Planungsfreiheit.

Merkmale

Systemprüfungen / CE-Produktpass nach DIN EN 14351-1:2006+A2:2016

Luftdurchlässigkeit
Schlagregendichtheit
Widerstandsfähigkeit gegen Windlast
Schallschutz
Bedienkräfte
Korrosionsbeständigkeit der Beschläge
Qualitätsmanagement
Umweltmanagement
Klasse 4
Klasse 7A
Klasse A3
RA,tr = 36 dB
Klasse 1
Klasse 4
Zertifiziert nach ISO 9001:2008
Zertifiziert nach ISO 14001

Technische Leistungen

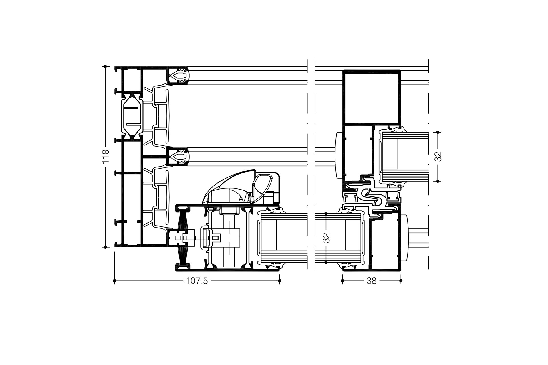
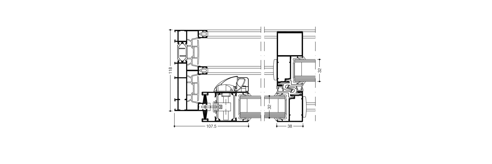
Profiltechnik

  • Schiebeelemente mit Bautiefe 65 mm (zweibahnig) oder 118 mm (dreibahnig)
  • Zwei-, drei-, vier- oder sechsflügelige Anwendung
  • Patentierte Eckverbindertechnik für hohe Bauteilfestigkeit und reduzierten Kleberverbrauch
  • Füllungsdicken: 24 mm, 28 mm oder 32 mm
  • Verdeckte oder sichtbare Entwässerung
  • Senkrechte Flügelprofile in unterschiedlichen Designs, gerade oder abgerundet
  • Individuell anpassbare Profilverbindungstechnik
  • Optional: Barrierefreie Schwelle

Thermal insulation

  • Uw bis zu 1,5 W/(m²K) mit Ug = 1,0 W/(m²K)

Beschläge

  • Max. Flügelgewicht mit Einzelrollen: 80 kg
  • Max. Flügelgewicht mit Doppelrollen: 220 kg
  • Flügelformate (B x H): bis zu 1500 mm x 2500 mm

KONTAKTIEREN SIE UNS

Haben Sie Fragen oder Anregungen, die Sie uns mitteilen möchten? Nehmen Sie jetzt Kontakt mit einem Experten auf, indem Sie auf den untenstehenden Link klicken.

Kontakt