WICSLIDE 160

WICSLIDE 160 kombiniert exzellente Wärmedämmwerte mit höchster Funktionalität und Ästhetik. Große mögliche Flügelabmessungen und dauerhafte Komfortbedienung sind Ihre Garanten für maximale Kundenzufriedenheit. Mit neuester Technik und innovativen Fertigungsvorteilen ist WICSLIDE 160 ein Hightech-Produkt, das Zeichen setzt.

Merkmale

Systemprüfungen / CE-Produktpass nach DIN EN 14351-1:2006+A2:2016

Luftdurchlässigkeit
Schlagregendichtheit
Widerstandsfähigkeit gegen Windlast
Schallschutz
Qualitätsmanagement
Umweltmanagement
Klasse 4
E750/9A
Klasse C3
Rw (C; Ctr) = 43 (–1; –3) dB
Zertifiziert nach ISO 9001:2008
Zertifiziert nach ISO 14001

Technische Leistungen

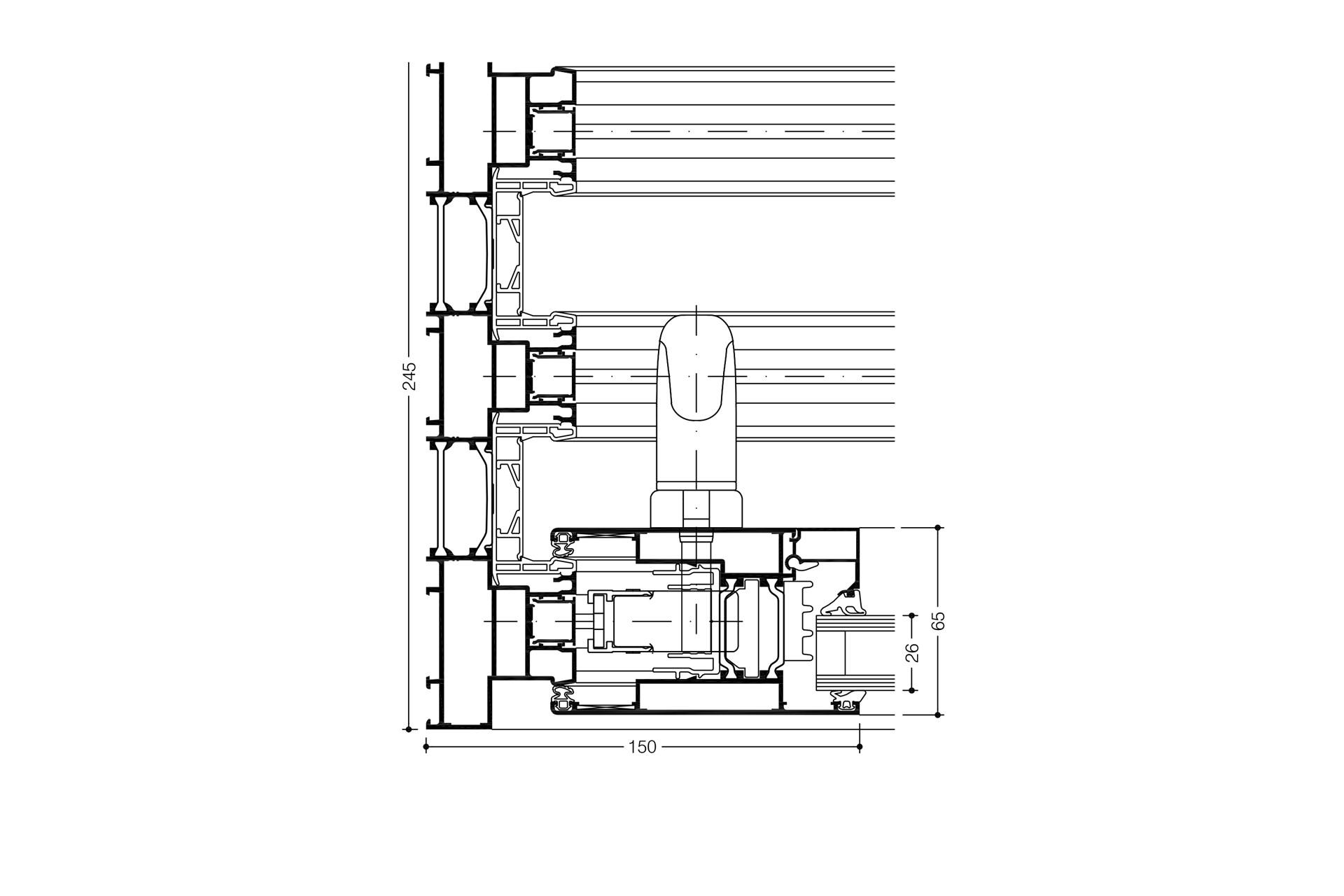
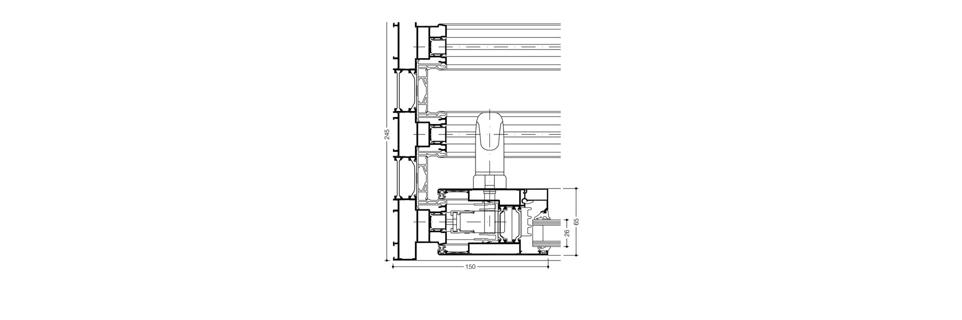
Profiltechnik

  • Optimierte Verhakungszone zwischen den Flügeln für optimierte Wärmedämmung und Dichtheit
  • Füllungsdicken von 4 mm bis 50 mm
  • Bautiefe 160 mm (zweibahnig) und 245 mm (dreibahnig)
  • Umlaufende Spezialblendrahmen mit Multifunktionszone
  • Barrierefreie Bodenzone
  • Komfortbedienung durch optimierte Laufwagentechnik
  • Verhakungszone ohne sichtbare Schrauben
  • Wahlweise mit Festfeldern oder festgestellten Flügeln

Wärmeschutz

  • Uw-Werte: unter 1,0 W/(m²K)

Beschläge

  • Hebe-Schiebebeschlag, Laufwagen mit integrierter Bürste zur Reinigung der Edelstahllaufschiene
  • Stützbock zur Reduzierung der Bedienkräfte beim Absenken des Flügels
  • Flügelformate (B x H): bis zu 3200 mm x 3400 mm
  • Flügelgewichte: bis zu 400 kg (Hebe-Schiebetür)

KONTAKTIEREN SIE UNS

Haben Sie Fragen oder Anregungen, die Sie uns mitteilen möchten? Nehmen Sie jetzt Kontakt mit einem Experten auf, indem Sie auf den untenstehenden Link klicken.

Kontakt