WICSTYLE 75 evo
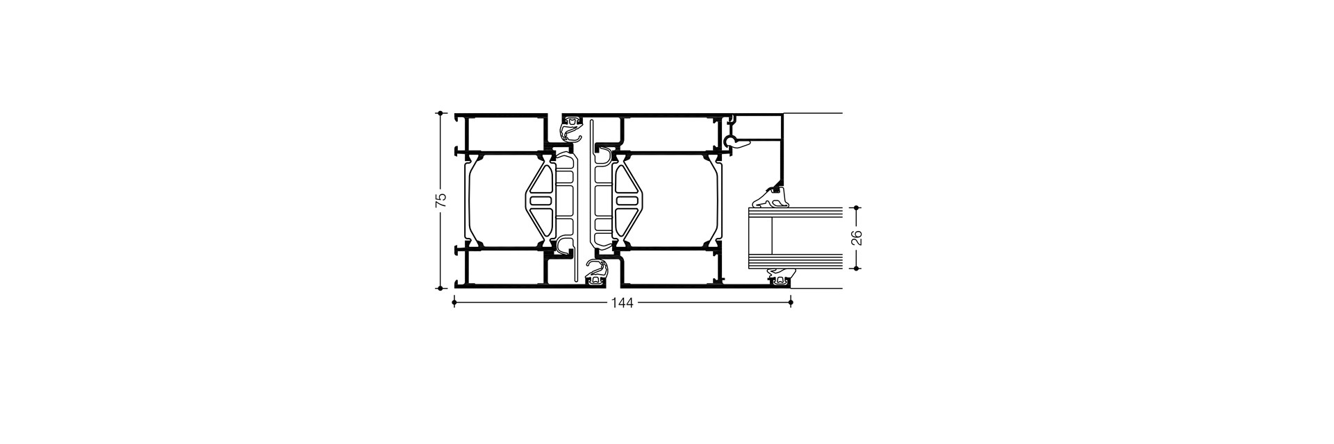
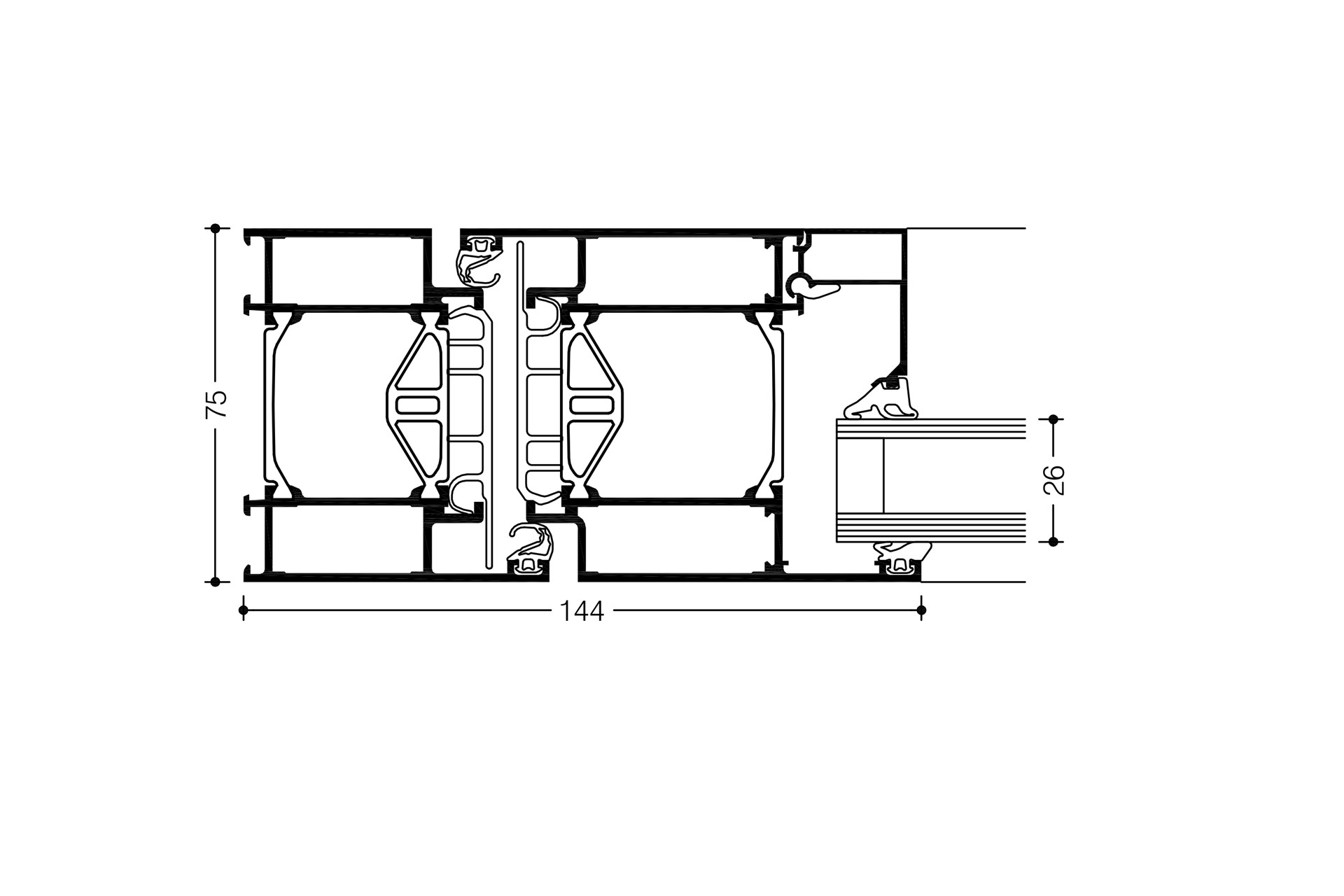
75 mm beépítési szélességével a WICSTYLE 75 evo a hoszigetelés és a szerkezeti jellemzok szempontjából az élre tör. Kiemelkedo muszaki teljesítményének és széles köru felhasználhatóságának köszönhetoen ideális megoldást kínál minden jelenlegi és jövobeli építészeti követelmény esetén, mind az új épületekben, mind pedig a felújítások során.
Characteristics
System test results / CE product pass in accordance with EN 14351-1:2006+A2:2016
Air permeability
Water tightness
Resistance to wind load
Acoustic Performance
Operating forces
Load bearing capacity of safety devices
Mechanical strength
Repeated opening / closing
Impact resistance
Behaviour between different climates
Burglar resistance
Bullet resistance
Quality assurance
Environmental management
Up to class 2
Up to 7A
Class C2
RW (C; Ctr) until 43 (–1; –4) dB
Class 2
Fulfilled
Class 3
Up to class 7 (500 000 cycles)
Class 1
Up to class 2(e) 2(d)
RC1N, RC2N, RC2, RC3
Up to class FB4 NS
Certified according to ISO 9001:2008
Certified according to ISO 14001
Technical performance
Profiltechnika
- Szimmetrikus kialakítású, fokozottan szigetelt többkamrás rendszer, minoségbiztosított hőszigetelő kapcsolat
- Egy- és kétszárnyú nyíló ajtókhoz
- Befelé vagy kifelé nyíló
- 6 mm és 60 mm közötti vastagságú üvegekhez vagy
kitöltő panelekhez - Különböző küszöbprofilok hőhíd-megszakítással vagy
anélkül, akadálymentes változatban is - Felülvilágítók, oldalsó üvegzések fix vagy nyitható kivitelben, a WICLINE evo ablakokkal kombinálva
Hőátbocsátási tényező
- Uf érték 1.6 to 1.8 W/(m²K), habanyag betétek nélkül
Vasalatok
- Sarokpánt
- Csavarozott pánt
- Rejtett pánt*
- Szárnyméretek (sz x m): 1200 mm x 2520 mm
- Max. szárnysúly: 200 kg-ig, átlövés-gátláshoz további pántokkal 400 kg-ig
További kialakítások
- Double action doors
- Lengoajtók
- Integrált keret lizénás-osztóbordás homlokzatokhoz
- Betörésgátlás a RC1 – RC3 osztályokban
- Átlövés-gátlás az FB4 osztályban
- Az ajtószárny átfedi a kitöltést az egyik vagy mindkét oldalon


