WICSTYLE 75 evo
A WICSTYLE evo alumínium ajtósorozat klasszikus kialakítására jellemzők a ferde profilú kontúrok és az átfedő szárnyak. Ez a kialakítás aláhúzza azt a stílust, amelyet gyakran követelnek a lakossági építészethez. Ideális új épületekhez és energikus felújításhoz egyaránt.
Characteristics
System test results / CE product pass in accordance with EN 14351-1:2006+A2:2016
Air permeability
Water tightness
Resistance to wind load
Acoustic Performance
Operating forces
Load bearing capacity of safety devices
Mechanical strength
Repeated opening / closing
Impact resistance
Behaviour between different climates
Burglar resistance
Quality assurance
Environmental management
Up to class 4
Up to 7A
Class C2
RW (C; Ctr) until 43 (–1; –4) dB
Class 2
Fulfilled
Class 3
Up to class 7 (500 000 cycles)
Class 1
Up to class 2(e) 2(d)
RC1N, RC2N, RC2, RC3
Certified according to ISO 9001:2008
Certified according to ISO 14001
Műszaki teljesítmény
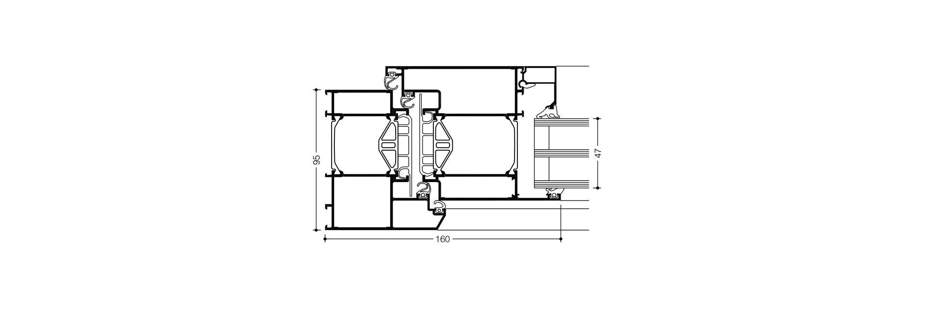
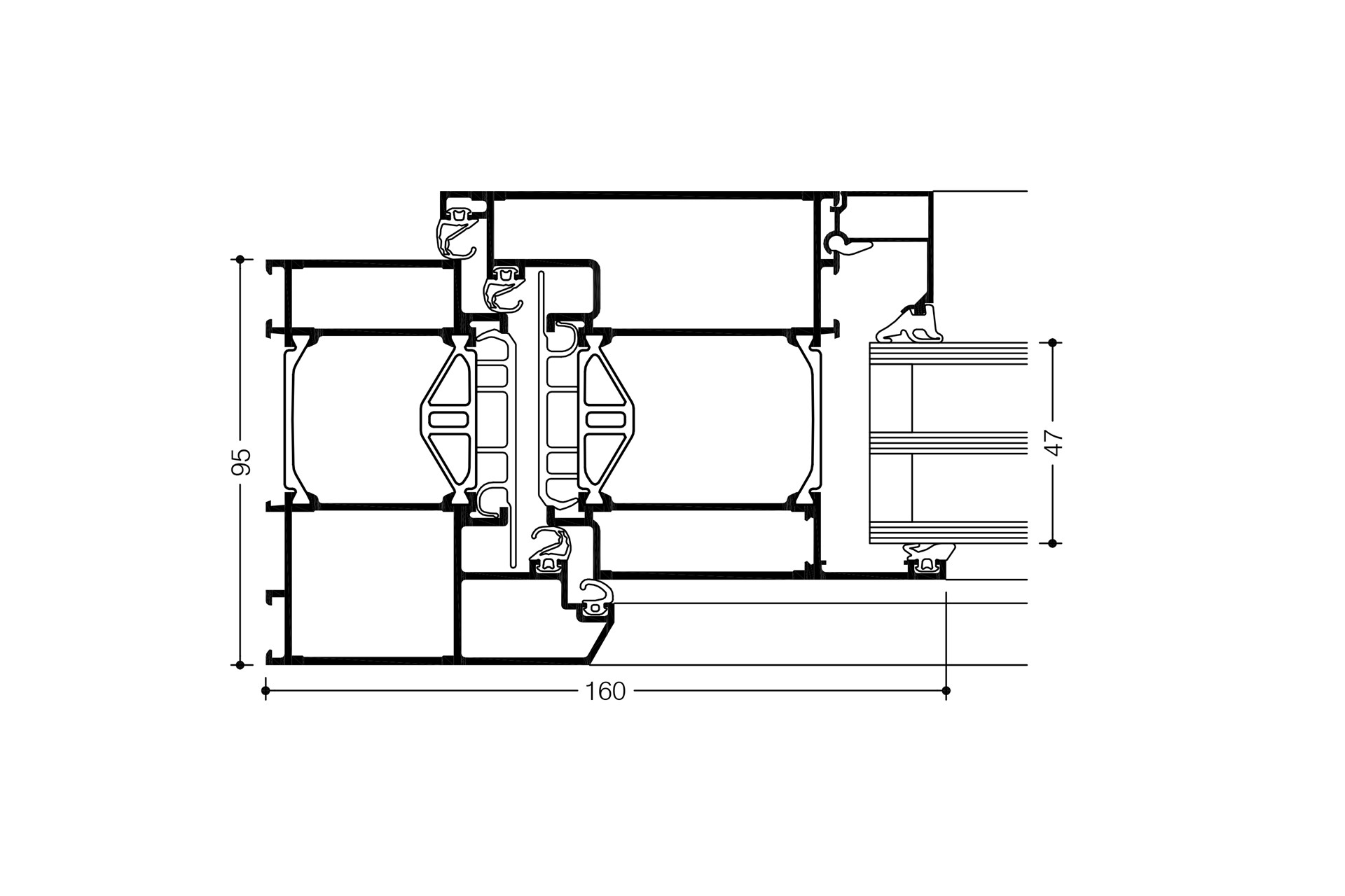
Profiltechnika
- Magas hőszigetelésű többkamrás rendszer, minőségbiztosított hőszigetelő csatlakozás
- Egy- és kétszárnyú ajtókhoz
- Be- és kifelé nyitáshoz
- 3 mm - 76 mm vastagság üvegekhez vagy panelekhez
- Különböző küszöbprofilok hőhídmegszakítssal vagy anélkül, akadálymentes kivitel
- Ventilátorok, fix vagy nyíló WICLINE EVO ablakokkal kombinálva
Hőszigetelés
-
Uf értékek: 1,6 - 1,8 W / (m²K) között, hab-betétek nélkül
Hardver
- Hengeres pánt
- Csavarozott pánt
- Rejtett pánt
- Szárnyméretek (szé x ma): 1400 mm x 2520 mm
Additional designs
- Double action doors
- Integration frame for stick façades
- Burglar resistance in classes RC1 to RC3


