WICSTYLE 50N/65N
Ezek a rendszerek elsősorban beltéri használatra vannak tervezve, hol a hőszigetelés nem elsődleges követelmény. Az ajtók ugyanakkor tartósság és kényelem szempontjából megfelelnek a legmagasabb követelményeknek.
Technical performance
Profiltechnológia
- Magas minőségű profilok különböző beépítési mélységgel
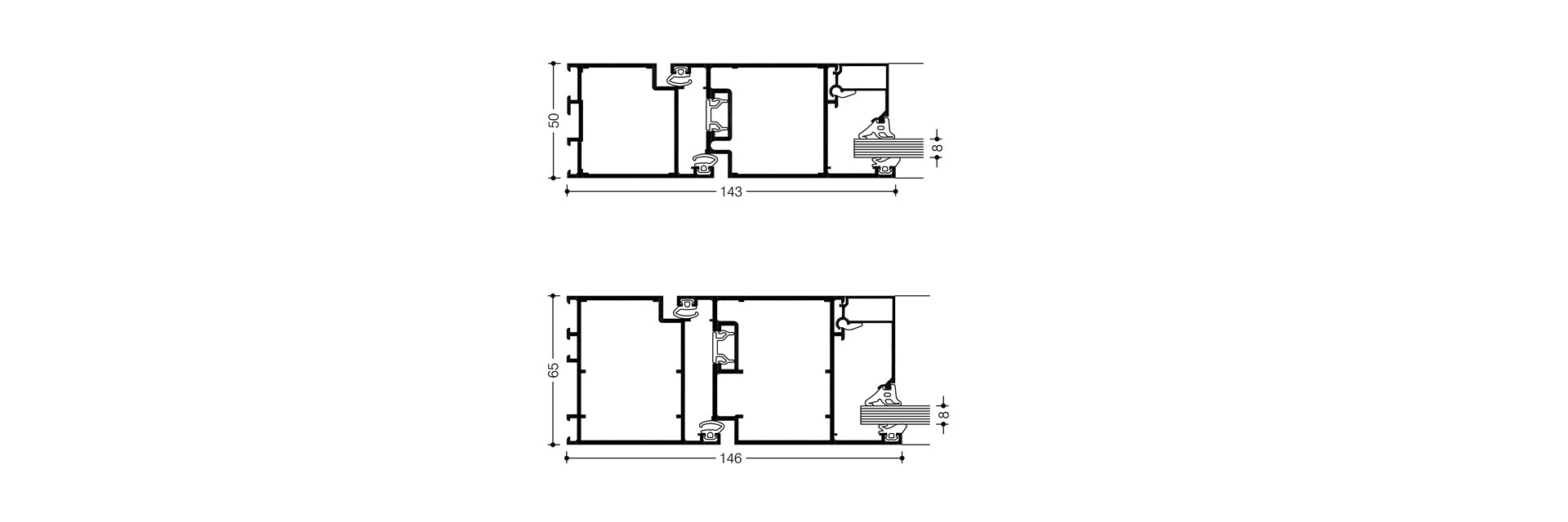
- WICSTYLE 50N 50mm
- WICSTYLE 65N 65mm
- Egy- és kétszárnyú ajtók síkban záródó szárnyakkal
- Befele és kifele nyíló kivitelben
- Felül vagy oldalvilágítók a WICLINE evo rendszerekkel kombinálva
- Ütköző vagy automata küszöbbel
- Henger vagy terpeszpántokkal
WICSTYLE 50N
- Üvegezhetőség 4-31mm között
- Szárnysúly 150 kg-ig
- Max. szárnyméret (sz x m): 1300 mm x 2350 mm
WICSTYLE 65N
- Üvegezhetőség 4-46mm között Rátakaró szárny esetén 8-57mm között
- Szárnysúly 200 kg-ig
- Max. szárnyméret (sz x m): 1450 mm x 2700 mm
Egyéb
Additional designs
- WICSTYLE 65N füstgátló vagy biztonsági ajtó (RC1 és RC2)




