WICLINE betörésgátlás
Személyi biztonság és épületvédelem - az épületéhez olyan megoldásra van szükség, amelyet az alumínium rendszerekkel teljes és kompatibilis módon lehet megvalósítani. Ezt az ablakok, függönyfalak és ajtók WICONA sorozatával érik el. Mindegyik betörésállóságot képes biztosítani, egyéb kiegészítő funkciókkal kombinálva.
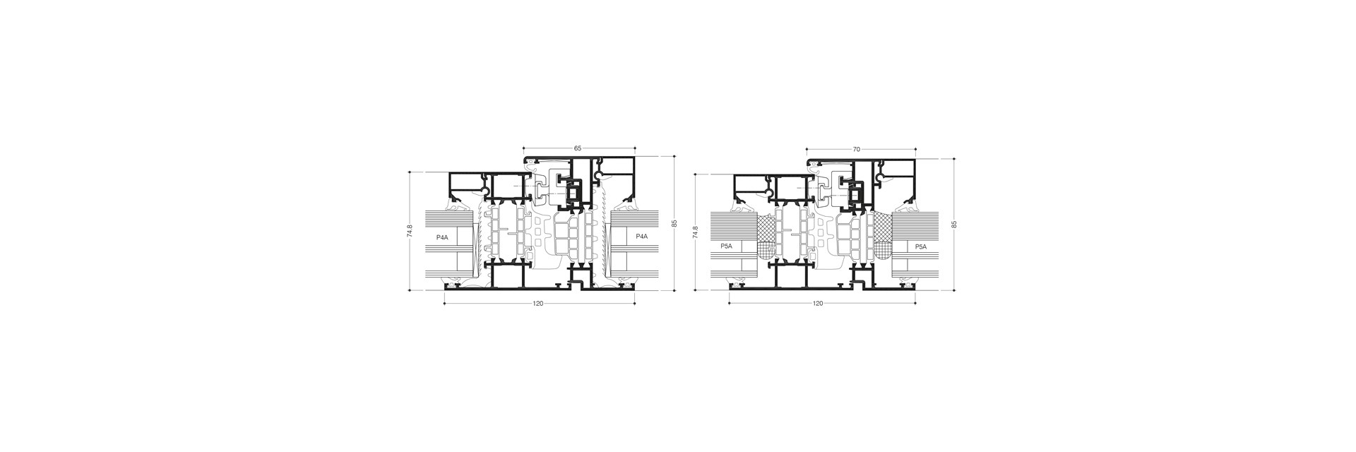
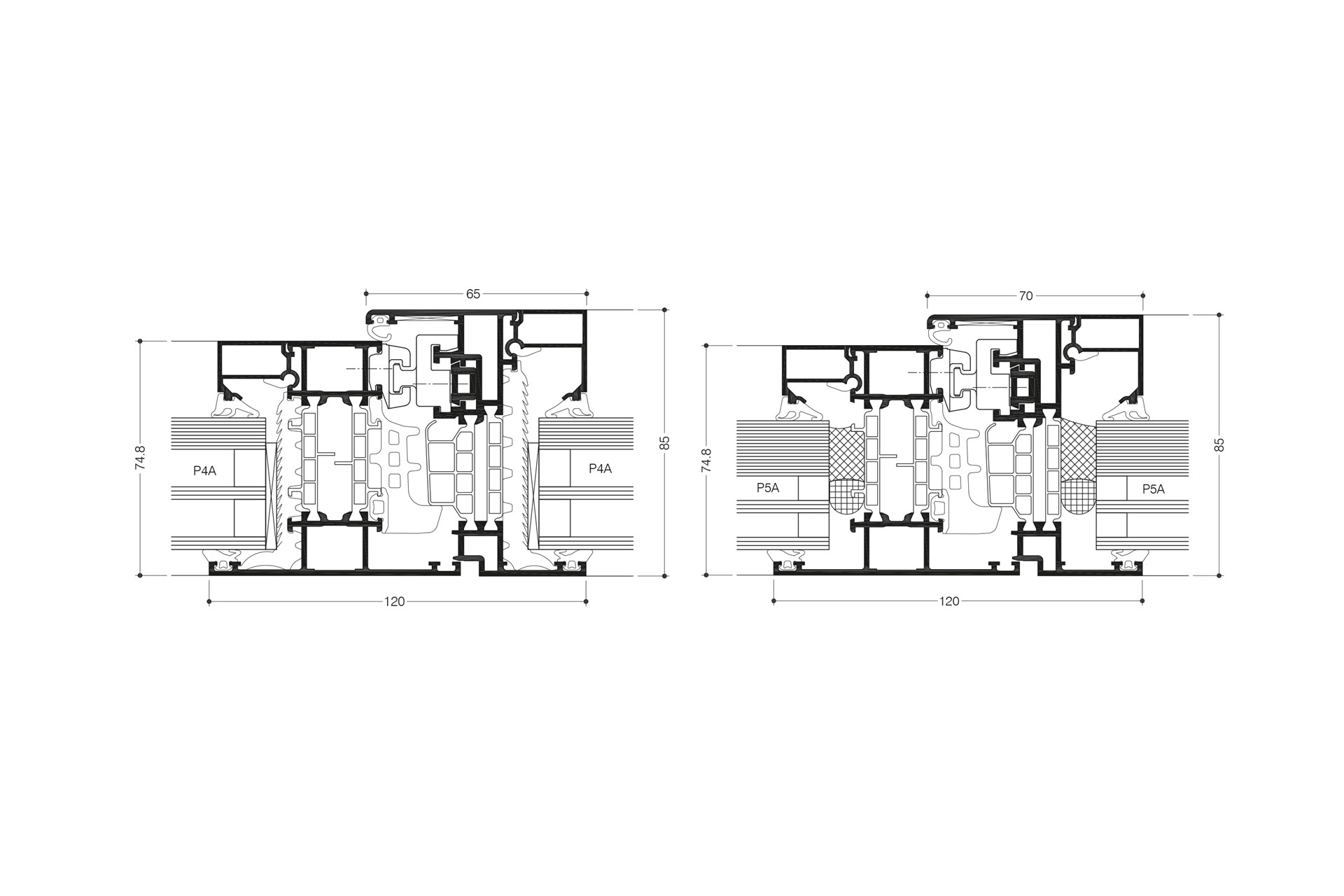
A különféle ellenállási osztályok az összes WICLINE ablak-sorozattal a konstrukciók vizuális megváltoztatása nélkül érhetők el, csak minimális kiegészítő intézkedésekkel, a szabványos kialakítás alapján.
Characteristics
System test results / CE product pass in accordance with EN 14351-1:2006+A2:2016
General Information
See classification of the respective WICLINE window series.
Technical performance
Betörésállóság az EN 1627 szerint
-
A betörésállóságra jelenleg érvényes, az EN 1627 szabvány 2011-ben és 2012-ben lépett hatályba az európai országokban. Ez felváltotta a korábbi nemzeti szabványokat. Az osztályozásokat az RC1N – RC3 osztályokra módosították, amelyek nem azonosak a korábbi WK1 – WK3 osztályokkal.
A WICONA ablak sorozat teszt eredményei
-
Az új, több változatú WICLINE 65 evo és WICLINE 75 evo sorozatokat az új EN 1627 szabvány szerint tesztelték. Könnyen meghatározhatók és kivitelezhetők minden további mérés nélkül az új szabvány szerint.
Burglar resistance according to EN 1627 resp. DIN 1627 / classifications
WICLINE 65 evo / 75 evo Turn / turn-tilt / tilt / tilt- first / double casement
WICLINE 65 evo / 75 evo Fanlight
WICLINE 65 evo / 75 evo Concealed sash
WICLINE 65 evo / 75 evo Classic design
WICLINE 95 Turn/ Turn-tilt/ Tilt/ Tilt-first/ Fanlight
WICLINE 115 AFS Turn/ Turn-tilt/ Tilt/ Tilt-first/ fixed field
RC1N, RC2N, RC2, RC3
RC1N, RC2N, RC2, RC3
RC1N, RC2N, RC2, RC3
RC1N, RC2N, RC2, RC3
RC1N, RC2N, RC2, RC3
RC1N, RC2N, RC2, RC3


