Porte pare-flammes et coupe-feu E30/EI30/EI60 - WICSTYLE 77FP
Dans un projet de construction, qu’il soit résidentiel ou dédié à un établissement recevant du public, la protection incendie se présente comme l’un des secteurs les plus sensibles. Élément clé de la sécurité des utilisateurs comme de la protection du bâtiment, elle requiert une grande expertise pour être la plus efficace possible. Forte de son statut de leader mondial de la menuiserie aluminium, WICONA propose, avec la gamme WICSTYLE 77 FP (pour fire protection), une offre étendue adaptée au neuf comme à la rénovation. <br>
Les portes en aluminium de la gamme proposent des configurations modulaires, s’adaptant aux exigences de chaque projet de construction. La classe E30 qualifie ainsi des portes aluminium répondant aux critères E (étanchéité aux flammes et aux fumées) pendant un temps déterminé, ici au moins 30 minutes. Les portes WICSTYLE 77 FP sont également disponibles au classement EI30, profitant de l’isolation thermique renforcée en plus des caractéristiques du classement E (étanchéité aux flammes et aux fumées) pendant un temps déterminé, ici au moins 30 minutes.
La gamme de portes en aluminium WICSTYLE 77 FP propose des élévations de profilés identiques à celles des gammes de portes WICSTYLE 65 et WICSTYLE 75 evo. Vos projets de construction bénéficient ainsi d’un design unifié.
Documentation
Performances techniques
Perméabilité à l’air
Étanchéité à l'eau
Résistance au vent
Anti-effraction
Classe 4
Classe 6A
Classe C3 / B3
RC1N, RC2N, RC2, RC3
Caractéristiques E30
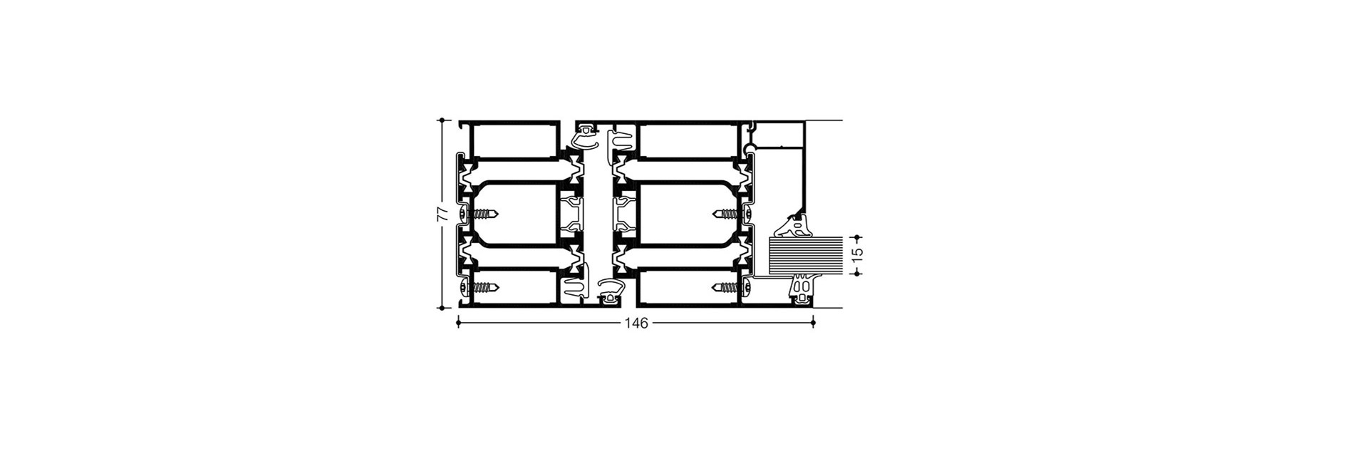
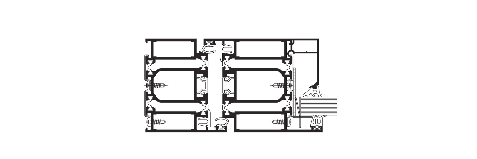
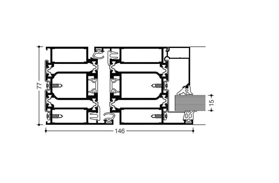
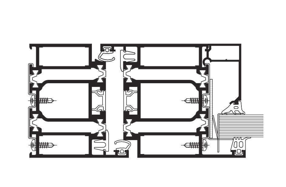
Principe du système
- PV de résistance au feu E30 validé au laboratoire Efectis selon EN 1634-1, EN 13501-2
- Esthétique de l’ouvrant identique à la gamme de portes WICSTYLE 65 evo et WICSTYLE 75 evo
- Équipement anti-panique conforme selon EN 179, EN 1125 et NF S 61937
- Sens du feu : indifférent
- Intégration dans :
- Cloison associée WICSTYLE 77 FP EI30 ou EI60
- Façade WICTEC 50 FP ou 60 FP EI30 sans avis de chantier - Vitrages Pilkington simples ou montés en isolant / en panneaux pleins Vetrotech
Quincaillerie
- Poids maximum par vantail : jusqu’à 200 kg
- Large choix de serrures : verrouillage mono et multipoints avec ou sans contrôle d’accès et asservissement, ouverture motorisée possible
- Paumelle en applique et paumelle en feuillure ouverture vers l’intérieur et vers l’extérieur
- Grandes dimensions possibles
jusqu’à L 1 500 mm x H 2 984 mm (simple battant)
ou L 2 538 mm x H 2 826 mm (double battant) pour la version EI30
Finitions
- Anodisée Qualanod
- Thermolaquée Qualicoat ou Qualicoat Seaside
- Thermolaquée Qualimarine ou Qualimarine Seaside
Caractéristiques EI30
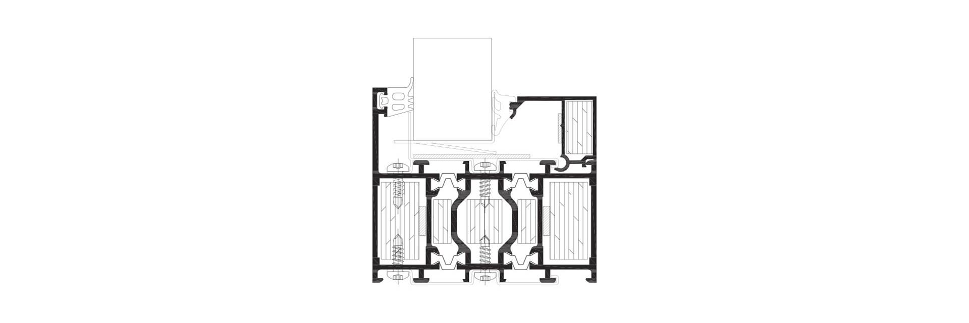
PRINCIPE DU SYSTÈME
- Cloison Fixe, pour applications intérieure ou extérieure
- Sens du feu indifférent
- Grandes dimensions possibles : jusqu'à L illimité x H 4798 mm
- Prises de volume : jusqu'à 50 mm
- Drainage visible
- Vitrage : simple ou isolant avec contreface feuilletée et intercalaire acier / aluminium / warm-Edge avec
- possibilité d'un Ug de 1.0 W/(m².K)
- Remplissage tôlé à base de BA13 ou laine de roche
- Intégration dans cloison légère
- Accessoire compatible profilés d'habillage
Finitions
- Thermolaquage Qualicoat
- Anodisation Qualanod
Fournisseurs Verriers
- AGC
- Pilkington
- Vetrotech
Caractéristiques EI60
PRINCIPE DU SYSTÈME
- Porte pour applications intérieure ou extérieure
- 1 vantail & 2 vantaux
- Sens du feu indifférent
- Ouverture extérieure et intérieure
- Dimensions :
- 1 vantail : jusqu'à L 1 495 x H 2 875 mm
- 2 vantaux : jusqu'à L 2 538 mm x H 2 510 mm - Drainage visible
- Paumelles visibles, en applique ou en feuillure
- Poids maximal par vantail : 260 Kg
- Intégration dans cloison légère
- Intégration dans les cloisons associées WICSTYLE 77 FP, WICTEC FP
Finitions
- Thermolaquage Qualicoat
- Anodisation Qualanod
Fournisseurs Verriers
- Pilkington
Applications










