VIA Vika
VIA Vika
Amt für Umwelt und Energie
Amt für Umwelt und Energie
Oberstufenschulhaus Horw
Oberstufenschulhaus Horw
Zweifel Pomy-Chips
Zweifel Pomy-Chips
Download
Download
VIA Vika
With a vision to make VIA Vika is a landmark for modern Oslo. The new building now blends beautifully into the surroundings - stepping right outside the door you’ll find the fjord, culture and a vibrant city life. To further emphasize VIA Vika as a part of the urban environment and thriving city life, it will be possible to walk through the building at any time of the day.
Another important premise of the project has been to create modern office spaces meeting the demands on being a full-service concept. Therefore, the architecture aims to contribute to the city life with possibilities for restaurants and offices. A real estate company also decided to unite all of their offices together under the roof of VIA.
VIA got awarded the desirable BREEAM certificate for its environmental efforts. The project has invested greatly in sustainable solutions with a closed cavity façade, solar cells, a green roof and energy wells.
Project details
Project partners
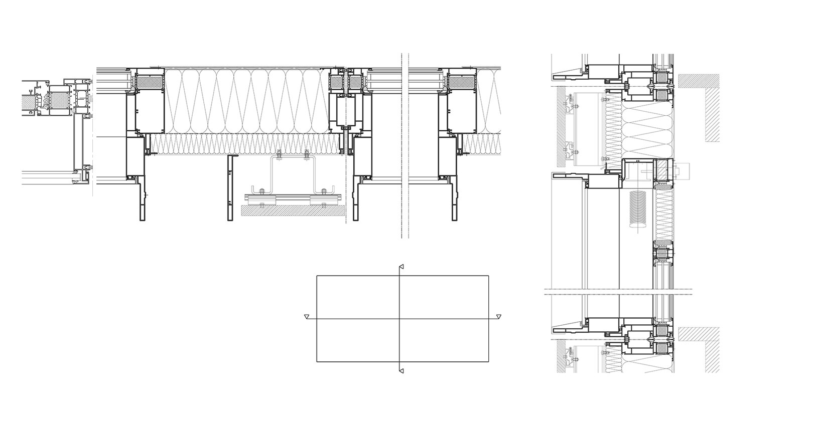
Technical drawings










Amt für Umwelt und Energie
Commissioned by the Canton of Basel, the new Office for Environment and Energy (AUE) in the centre of Basel is a showcase project for sustainable construction. Through the innovative wood/concrete hybrid construction and the holistic energy concept the building serves as a role model in terms of energy efficiency, construction ecology and architecture. By using the closed cavity façade system WICTEC Modul air made of Hydro CIRCAL 75R, a recycled end-of-life aluminium, the system contributes to the high environmental quality and compliance with the Minergie-A-ECO standard.
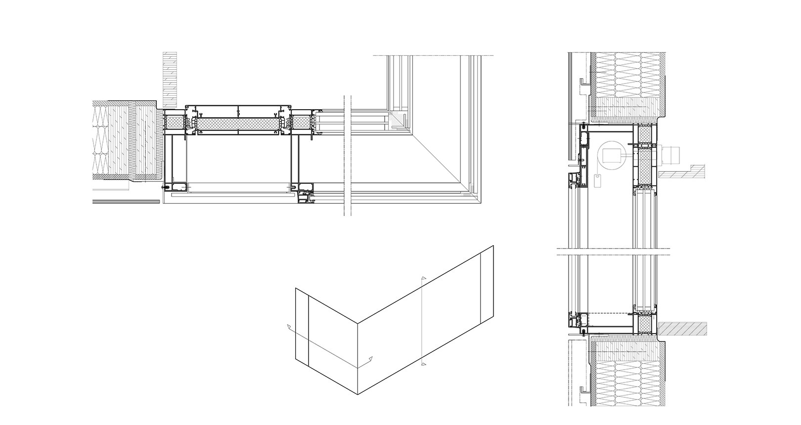
The innovative WICTEC Modul air closed cavity system is integrated into the façade as a kind of box window. The special double-shell construction minimises heat loss in winter and, in combination with the sun protection integrated into the cavity and automated night cooling, offers very good thermal protection in summer. This ensures maximum user comfort with comparatively low maintenance costs for the building owner.
Project details
Project partners
Technical drawings










Oberstufenschulhaus Horw
The school center in Horw, a steel system building from the 1970s, no longer fulfilled the requirements for space, climate skin, building automation, fire safety, etc. The completely renovated and expanded building has now the Minergie standard, thanks in part to the innovative closed cavity façade WICTEC Modul air.
Thanks to its technical features and the attractive design the more or less “new” school attracts plenty of attention. On what is now an area of 7,500 m² there are 28 rooms for classes and groups, two kitchens, a music room, a common room and a management room providing space for everything that a modern school with an ambitious teaching programme requires.
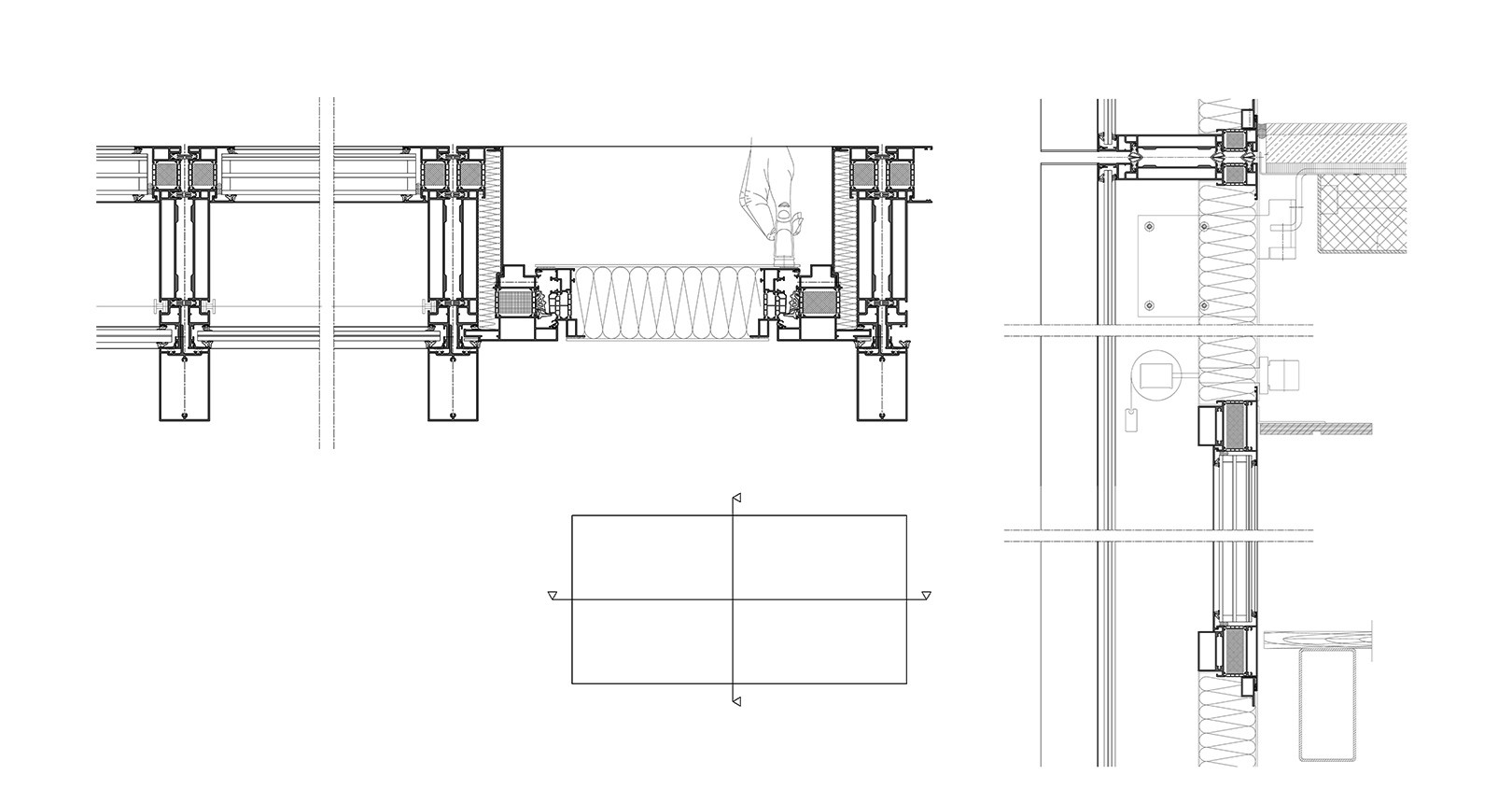
A special visual feature of the façade in Horw are the elements which are opaque from outside but transparent from inside. This is due to a special fabric made by the Swiss company Sefar AG (Heiden).
Project details
Stakeholder
Technical drawings










ZWEIFEL POMY-CHIPS AG (Extension building)
The Swiss family-owned company Zweifel Pomy-Chips AG has decided to extend their production site for its potato crisps by adding another office and service building. In addition to creating more office space and more space for research and development, the new building also houses a staff canteen and a visitor center.
In order to guarantee a high quality of the interior, the building envelope requires large glass surfaces and profiles that are as narrow as possible to achieve maximum transparency. In addition, the façade system had to meet high requirements in terms of sustainability and energy efficiency, as well as providing convincing solar, weather and sound protection.
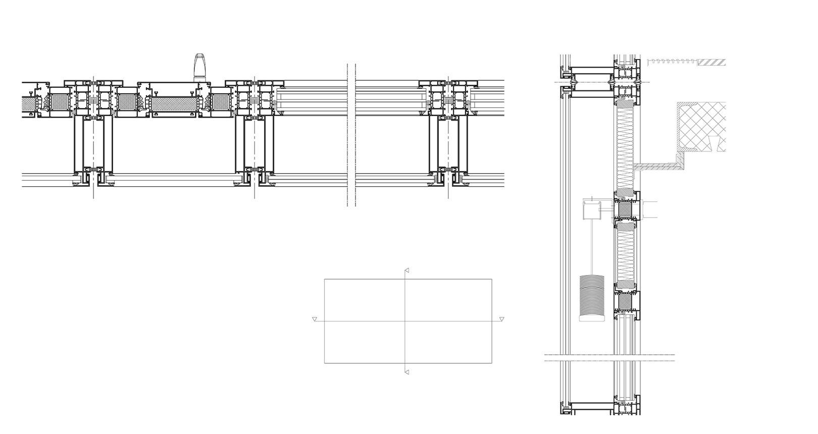
In consultation between the client, facade planner and architects, it was decided that the closed cavity façade system WICTEC Modul air was the ideal system to meet these requirements. Thus, 170 elements of the WICTEC Modul air façade system were installed in a total façade area of 1,500 m².
Project details
Stakeholder
Technical drawings










To return to the WICTEC Modul air landing page, click to the following link: www.wicona.com/wictec-modul-air




